9126 Fox Court, Victoria, MN 55386

New Listing
$299,900
Property Type: Residential Bedrooms: 2 Baths: 2 Square Footage: 1,550 Lot Size (sq. ft.): 1,742 Status: Coming Soon
Current Price: $299,900 List Date: 4/13/2026 Last Modified: 4/13/2026

Overview

Description

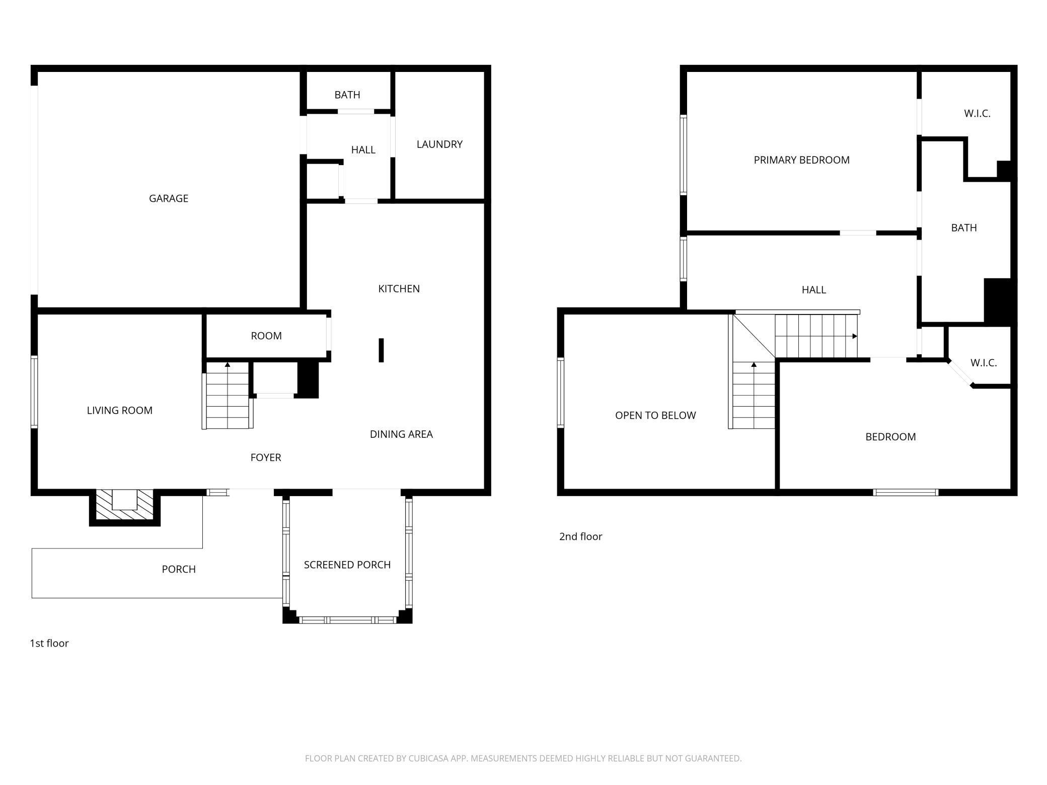
Freshly updated and well maintained end unit town home! From the moment you enter this spacious home you will be struck by the pride in ownership and care. The beautiful 42" maple cabinets show off the tall ceilings and tastefully updated light fixtures. The soaring windows let in an abundance of natural lighting with great views of nature and prairie grasses. The development was well planned out with plenty of green areas and nature. The upper level has a large soaker tub and seperate shower. The owner's bedroom has a spacious walk in closet with nice shelving. Awesome office loft area outside owner's bedroom and overlooking the living room. The garage is large and easily fits two cars plus there is additional parking in front. Development is in desirable Victoria community. Close to many trails, lakes and popular restaurants and coffee shops.

Listing Details MLS# 7053833

General Property Information

Assoc Mgmt Co. Phone #
763-225-6400
Association Fee Frequency
Monthly
Association Mgmt Co. Name
Associa-MN
Common Wall
Yes
Lot Measurement
Acres
Manufactured Home?
No
Multiple PIDs?
No
New Development
No
Number of Fireplaces
Yes
Waterfront Present
No
Year Built
2005
Yearly/Seasonal
Yearly
Zoning
Residential-Single Family
Bath Full
Yes
Bath Half
Yes
Main Floor Total SqFt
1040
Above Grd Total SqFt
1550
Total SqFt
1550
Total Finished Sqft
1550.00
FireplaceYN
Yes
Style
(TH) Quad/4 Corners
Foundation Size
1040
Association Fee
300
Garage Stalls
2
Lot Dimensions
common
Acres
0.04
Assessment Pending
No
Bath Three Quarters
0
Bath Quarter
0
Below Grd Total SqFt
0

Property Features

Accessible: None Air Conditioning: Central Air Amenities Unit: Ceiling Fan(s); Hardwood Floors; Indoor Sprinklers; Porch; Vaulted Ceiling(s); Walk-In Closet; Washer/Dryer Hookup Appliances: Dishwasher; Disposal; Dryer; Microwave; Range; Refrigerator; Washer Association Fee Includes: Building Exterior; Hazard Insurance; Outside Maintenance; Professional Mgmt; Sanitation; Shared Amenities Basement: None Bath Description: Main Floor 1/2 Bath; Upper Level Full Bath; Walk Thru Construction Status: Previously Owned Dining Room Description: Informal Dining Room Exterior: Brick/Stone; Cement Board Family Room Characteristics: 2 Story/High/Vaulted Ceilings; Loft; Main Level Fireplace Characteristics: Gas Burning; Living Room Foundation: Slab Fuel: Natural Gas Heating: Forced Air Parking Characteristics: Garage Door Opener Roof: Asphalt Shingles Sellers Terms: Cash; Conventional; FHA; VA Sewer: City Sewer/Connected Stories: Two Townhouse Characteristics: End Unit; Multi-Level Water: City Water/Connected

Contract Information

Contingency
None
Original List Price
299900
ListPrice
299900
Owner is an Agent?
No
Auction?
No

Location Tax and Other Information

House Number
9126
Street Name
Fox
Street Suffix
Court
Postal City
Victoria
County
Carver
State
MN
Zip Code
55386

Assessments

Tax With Assessments
2994
Assessment Balance
0
Assessment Installment
0

Building Information

Finished SqFt Above Ground
1550

More Information

Lease Details

Land Leased
Not Applicable

Miscellaneous Information

Homestead
Yes

Ownership

Fractional Ownership
No

Parking Characteristics

Garage Dimensions
19x17
Garage Square Feet
400
Garage Door Opener
Yes

Office/Member Info

Association
MAAR

Location, Tax and Other Information

AssocFeeYN
Yes
Legal Description
SECT 24 TWP 116 RANGE 024 LAKETOWN 2ND ADDITION LOT 01 BLOCK 04
Listing City
Victoria
Map Page
131
Municipality
Victoria
School District
Eastern Carver County Schools
School District Phone
952-556-6100
Country
US
Property ID Number
653180170
Tax Year
2026
Tax Amount
2994
In Foreclosure?
No
Potential Short Sale?
No
Lender Owned?
No

Directions & Remarks

Public Remarks
Freshly updated and well maintained end unit town home! From the moment you enter this spacious home you will be struck by the pride in ownership and care. The beautiful 42" maple cabinets show off the tall ceilings and tastefully updated light fixtures. The soaring windows let in an abundance of natural lighting with great views of nature and prairie grasses. The development was well planned out with plenty of green areas and nature. The upper level has a large soaker tub and seperate shower. The owner's bedroom has a spacious walk in closet with nice shelving. Awesome office loft area outside owner's bedroom and overlooking the living room. The garage is large and easily fits two cars plus there is additional parking in front. Development is in desirable Victoria community. Close to many trails, lakes and popular restaurants and coffee shops.
Directions
County Rd 11 (Victoria Dr.), South to Red Fox, West to Meadow, North to Fox Court.

Accessible

None
Yes

Air Conditioning

Central Air
Yes

Amenities Unit

Ceiling Fan(s)
Yes
Hardwood Floors
Yes
Indoor Sprinklers
Yes
Porch
Yes
Vaulted Ceiling(s)
Yes
Walk-In Closet
Yes
Washer/Dryer Hookup
Yes

Appliances

Dishwasher
Yes
Disposal
Yes
Dryer
Yes
Microwave
Yes
Range
Yes
Refrigerator
Yes
Washer
Yes

Association Fee Includes

Building Exterior
Yes
Hazard Insurance
Yes
Outside Maintenance
Yes
Professional Mgmt
Yes
Sanitation
Yes
Shared Amenities
Yes

Basement

None
Yes

Bath Description

Main Floor 1/2 Bath
Yes
Upper Level Full Bath
Yes
Walk Thru
Yes

Construction Status

Previously Owned
Yes

Dining Room Description

Informal Dining Room
Yes

Exterior

Brick/Stone
Yes
Cement Board
Yes

Family Room Characteristics

2 Story/High/Vaulted Ceilings
Yes
Loft
Yes
Main Level
Yes

Fireplace Characteristics

Gas Burning
Yes
Living Room
Yes

Foundation

Slab
Yes

Fuel

Natural Gas
Yes

Heating

Forced Air
Yes

Insurance Fee

Insurance Fee
0

Patio, Porch and Deck Features

Front Porch
Yes
Screened
Yes

Restriction/Covenants

Mandatory Owners Assoc
Yes
Pets - Cats Allowed
Yes
Pets - Dogs Allowed
Yes
Pets - Number Limit
Yes

Roof

Asphalt Shingles
Yes

Sellers Terms

Cash
Yes
Conventional
Yes
FHA
Yes
VA
Yes

Sewer

City Sewer/Connected
Yes

Stories

Two
Yes

Townhouse Characteristics

End Unit
Yes
Multi-Level
Yes

Water

City Water/Connected
Yes

Room Information

Dining Room Dimensions: 9.5x12 Level: Main First (1st) Bedroom Dimensions: 17x12 Level: Upper Kitchen Dimensions: 13x11 Level: Main Laundry Dimensions: 6x6 Level: Main Living Room Dimensions: 13x12 Level: Main Loft Dimensions: 11x6 Level: Upper Screened Porch Dimensions: 9x9 Level: Main Second (2nd) Bedroom Dimensions: 17x10 Level: Upper
Listing Office: John Thomas Realty
IDX
Last Updated: April - 13 - 2026
The data relating to real estate for sale on this web site comes in part from the Broker Reciprocity SM Program of the Regional Multiple Listing Service of Minnesota, Inc. The information provided is deemed reliable but not guaranteed. Properties subject to prior sale, change or withdrawal. ©2024 Regional Multiple Listing Service of Minnesota, Inc All rights reserved.