6503 72 Avenue S, Horace, ND 58047

New Listing
$39,490
Property Type: Land Lot Size (sq. ft.): 6,098 Status: Active
Current Price: $39,490 List Date: 4/08/2026 Last Modified: 4/08/2026

Overview

Description

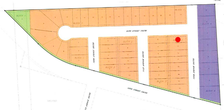
55 lots to choose from

Listing Details MLS# 7050770

General Property Information

Comp Sale YN
No
Development
No
Lot Measurement
Acres
Multiple PIDs?
No
Plat Recorded
Yes
Waterfront Present
No
Yearly/Seasonal
Yearly
Zoning
Residential-Single Family
Lot Dimensions
50 x 130
Acres
0.14
Assessment Pending
Yes
Association Fee
0

Property Features

Available Utilities: Electricity Available; Electricity Connected; Natural Gas Available; Natural Gas Connected; Sewer Available; Sewer Connected; Water Available; Water Connected Development Status: Finished Lot(s) Improvements: Paved Streets; Public Road Land Inclusions: Abstract; Platted Topography: Level

Contract Information

Contingency
None
Original List Price
39490
ListPrice
39490
Owner is an Agent?
No
Auction?
No

Location Tax and Other Information

House Number
6503
Street Name
72
Street Suffix
Avenue
Street Direction Suffix
S
Postal City
Horace
County
Cass
State
ND
Zip Code
58047
Complex/Dev/Subdivision
Southdale Farms 6th Add

Assessments

Assessment Balance
5004.52
Assessment Installment
364.61
Tax With Assessments
918.46

Builder Information

Builder Restrictions
Open

More Information

Lease Details

Land Leased
Not Applicable

Miscellaneous Information

Homestead
No

Ownership

Fractional Ownership
No

Office/Member Info

Association
FMR

Location, Tax and Other Information

AssocFeeYN
No
Legal Description
SOUTHDALE FARMS 6TH ADDN LT 9 BLK 3 **5-10-23 PLATTED FRM 15-0200-10001-040 PER PLAT DOC#1688820 FOR 2023
Listing City
Horace
Map Page
999
Municipality
Horace
School District
West Fargo
Property ID Number
15111900440000
Tax Year
2025
Tax Amount
441.38
In Foreclosure?
No
Potential Short Sale?
No
Lender Owned?
No

Directions & Remarks

Public Remarks
55 lots to choose from
Directions
South on Cty 17 to Southdale Add

Development Status

Finished Lot(s)
Yes

Insurance Fee

Insurance Fee
0

Restriction/Covenants

Other Covenants
Yes

Topography

Level
Yes

Available Utilities

Electricity Available
Yes
Electricity Connected
Yes
Natural Gas Available
Yes
Natural Gas Connected
Yes
Sewer Available
Yes
Sewer Connected
Yes
Water Available
Yes
Water Connected
Yes

Improvements

Paved Streets
Yes
Public Road
Yes

Land Inclusions

Abstract
Yes
Platted
Yes

Documents

Listing Office: Dakota Plains Realty
IDX
Last Updated: April - 08 - 2026
The data relating to real estate for sale on this web site comes in part from the Broker Reciprocity SM Program of the Regional Multiple Listing Service of Minnesota, Inc. The information provided is deemed reliable but not guaranteed. Properties subject to prior sale, change or withdrawal. ©2024 Regional Multiple Listing Service of Minnesota, Inc All rights reserved.