56656 Stephanie Lane, Pine City, MN 55063

New Listing
$389,900
Property Type: Residential Bedrooms: 4 Baths: 2 Square Footage: 2,400 Lot Size (sq. ft.): 311,018 Status: Coming Soon
Current Price: $389,900 List Date: 4/28/2026 Last Modified: 4/28/2026

Overview

Description

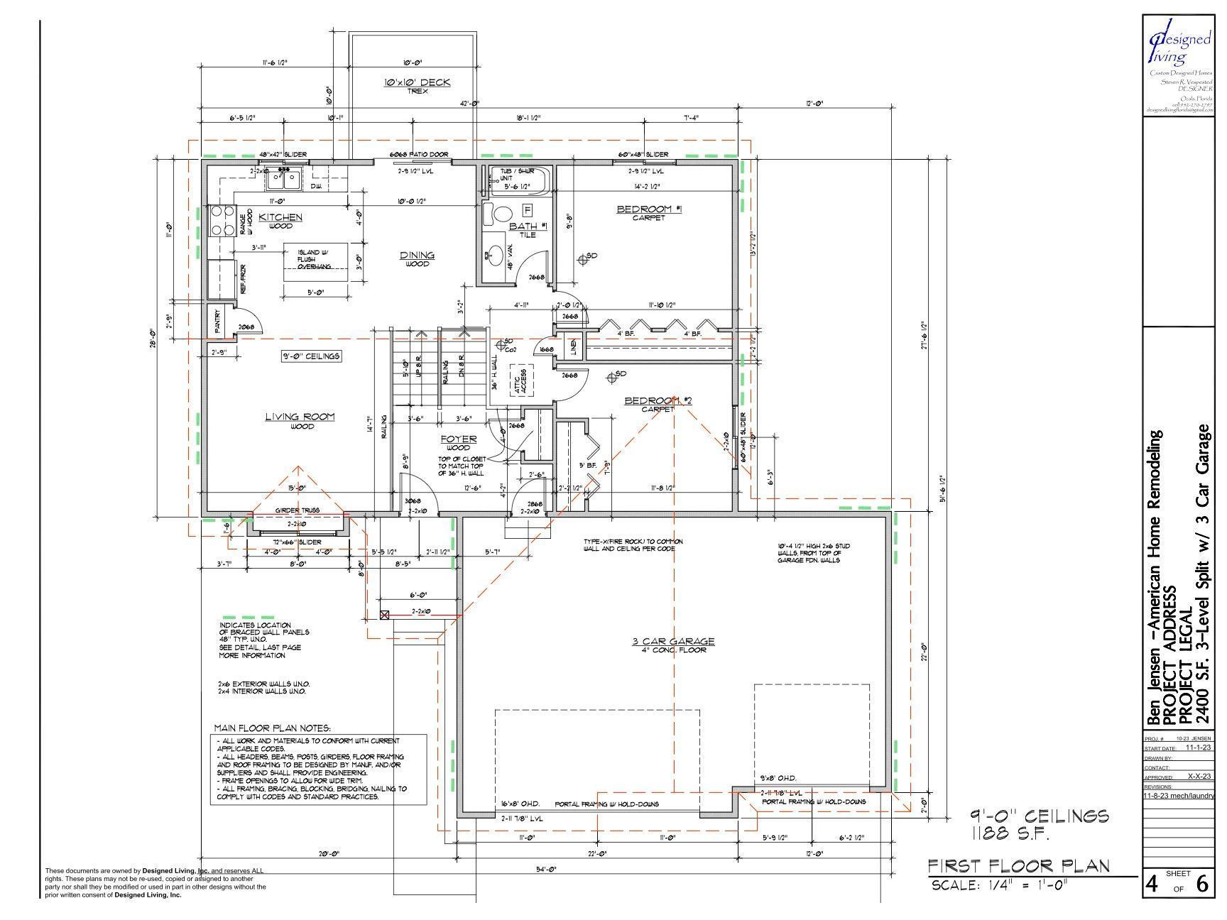
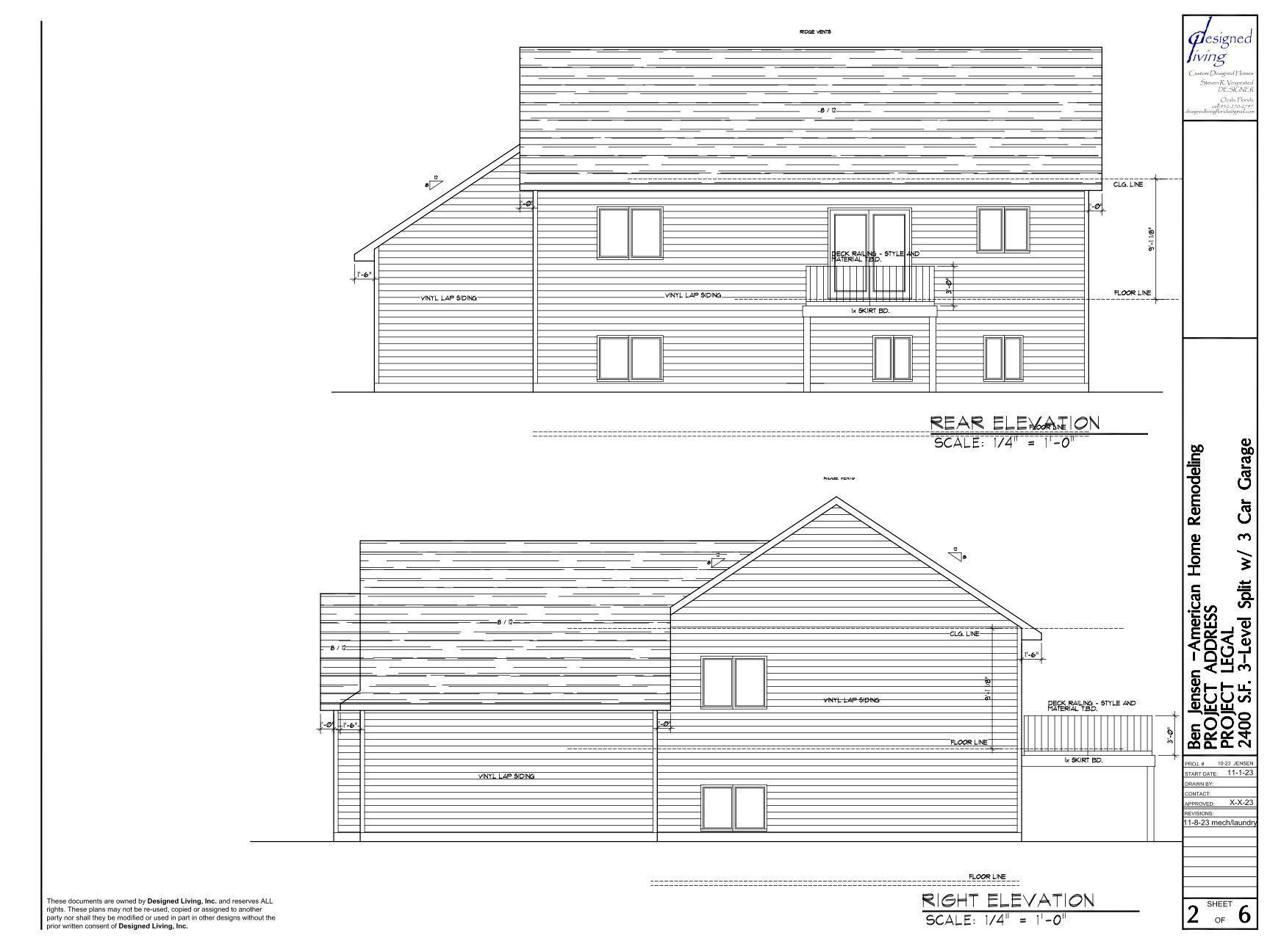
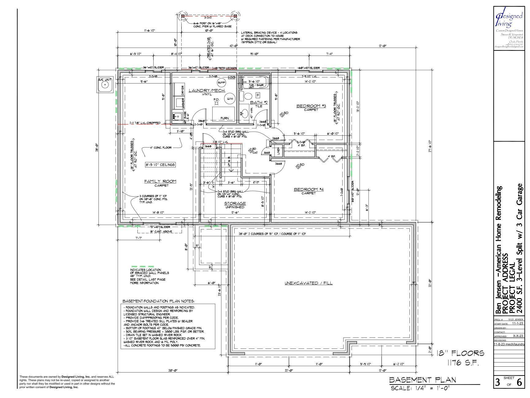
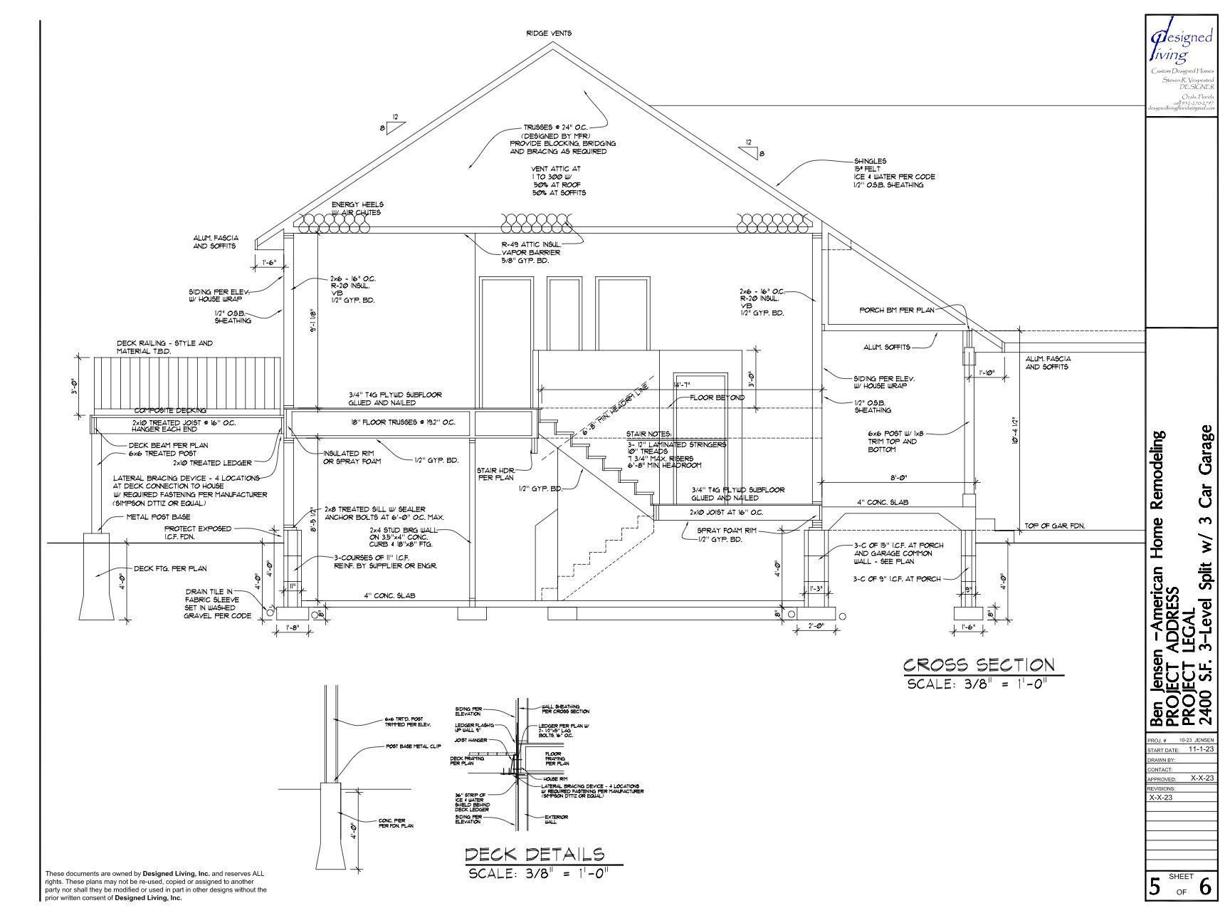
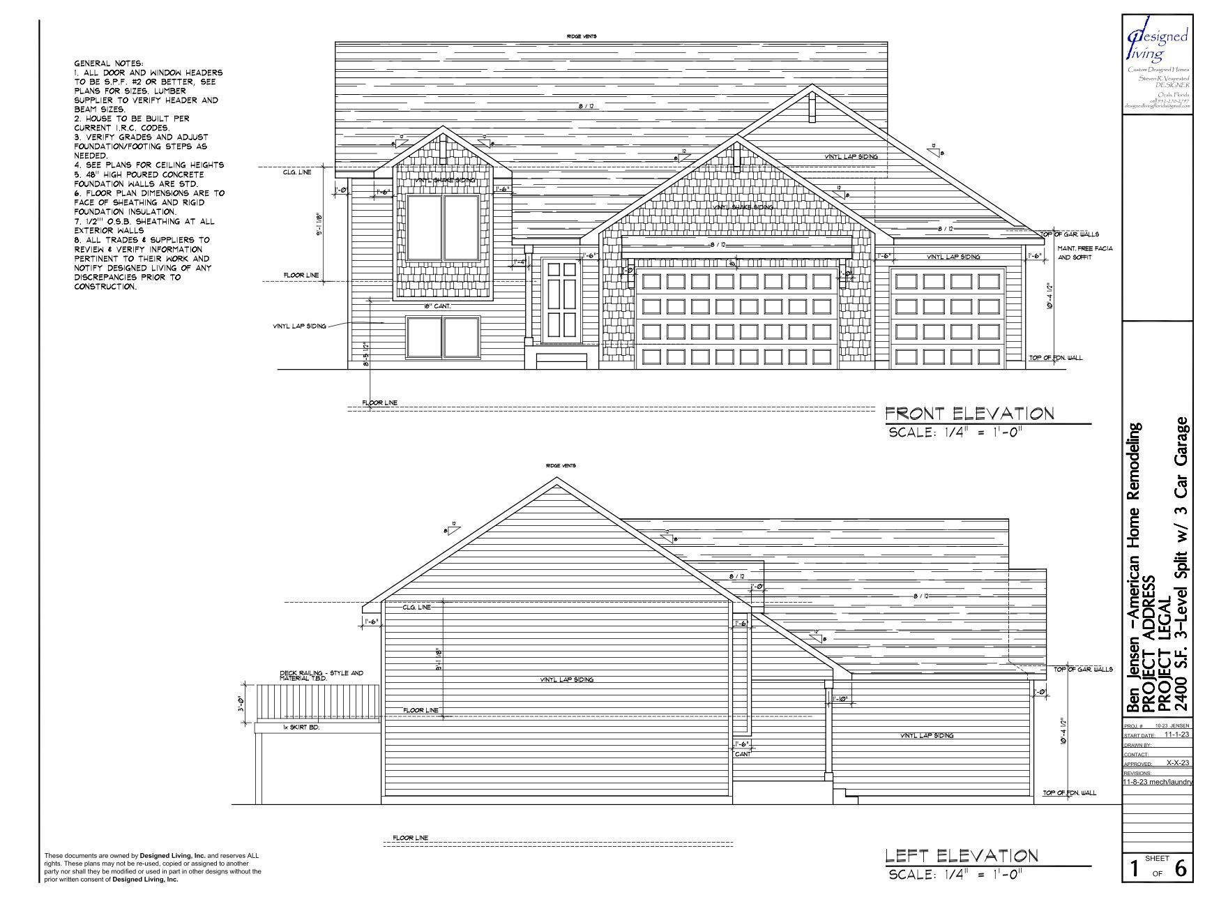
Come take a look at this new construction home in Rock Creek. The Quiet, Country Living Split Entry home is stunning at first glance. The adorable front porch, dual gable roof line and crisp charcoal siding offset by the crisp white trim and 3 car garage are the first things you will notice but they will not be the last. The interior features a nice foyer with entry from both the front door and garage service door along with 4 nice size bedrooms, 2 Full Bathrooms a basement family room that has a nook that will make a great office and a deck that overlooks the back of the 7+ acre lot. The finishes are not done yet so the sooner you get here the more of a chance you have to make some finishing choices. Pictures will be updated as things some together. Call with any questions and let your dreams run wild! Ask how much extra that pole barn you want will run you! See if the Deck can be made larger, multi-level or built to fit a hot tub. Hardwood floors? ALL Luxury Vinyl Planks? Your dreams are the guide here. Ask so we can see what we can do!

Listing Details MLS# 7063117

General Property Information

Common Wall
No
Lot Measurement
Acres
Manufactured Home?
No
Multiple PIDs?
No
New Development
No
Waterfront Present
No
Year Built
2026
Yearly/Seasonal
Yearly
Zoning
Residential-Single Family
Bath Full
2
Main Floor Total SqFt
175
Above Grd Total SqFt
1224
Below Grd Total SqFt
1176
Total SqFt
2400
Total Finished Sqft
2224.00
FireplaceYN
No
Style
(SF) Single Family
Foundation Size
1176
Power Company
East Central Energy
Garage Stalls
3
Lot Dimensions
437 X 682 X 430 X 761
Acres
7.14
Assessment Pending
No
Number of Fireplaces
0
Bath Three Quarters
0
Bath Half
0
Bath Quarter
0
Association Fee
0

Property Features

Accessible: None Air Conditioning: Central Air Amenities Unit: Deck; Washer/Dryer Hookup Assumable Loan: Not Assumable Basement: Drain Tiled; Egress Windows; Full; Storage Space; Sump Pump; Other Bath Description: Upper Level Full Bath; Full Basement Construction Materials: Frame Construction Status: Completed New Construction Dining Room Description: Informal Dining Room; Kitchen/Dining Room Electric: 200+ Amp Service; Circuit Breakers Existing Financing: Other Exterior: Aluminum Siding; Vinyl Family Room Characteristics: Family Room; Lower Level Foundation: Insulating Concrete Forms; Poured Concrete Fuel: Propane Heating: Forced Air Laundry: Laundry Room; Lower Level; Sink; Washer Hookup Parking Characteristics: Garage Door Opener Property Subtype: Rural Residential Road Frontage: City Street; No Outlet/Dead End; Unpaved Streets Road Responsibility: Public Maintained Road Roof: Age 8 Years or Less; Architectural Shingle Sellers Terms: Adj. Rate/Gr Payment; Cash; Conventional; Federal Land Bank; FHA; MHFA/WHEDA; Rural Development; VA; Other Sewer: Septic System Compliant - Yes Stories: Bi-Level Water: Well

Contract Information

Contingency
None
Original List Price
389900
ListPrice
389900
Owner is an Agent?
No
Auction?
No

Location Tax and Other Information

House Number
56656
Street Name
Stephanie
Street Suffix
Lane
Postal City
Pine City
County
Pine
State
MN
Zip Code
55063
Complex/Dev/Subdivision
Rock Creek Estate A Div Of G Farm

Assessments

Assessment Balance
10
Tax With Assessments
938

Basement

Foundation Dimensions
42 X 28
Drain Tiled
Yes
Egress Windows
Yes
Full
Yes
Storage Space
Yes
Sump Pump
Yes
Other
Yes

More Information

Building Information

Finished SqFt Above Ground
1224
Finished SqFt Below Ground
1000

Lease Details

Land Leased
Not Applicable

Miscellaneous Information

Homestead
No

Ownership

Fractional Ownership
No

Parking Characteristics

Garage Dimensions
34 X 23
Garage Square Feet
782
Garage Door Opener
Yes

Public Survey Info

Range#
21
Section#
23
Township#
38

Office/Member Info

Association
MAAR

Location, Tax and Other Information

AssocFeeYN
No
Legal Description
SECT-23 TWP-038 RANGE-021 ROCK CREEK EST A DIV OF G FARM LOT-005 BLOCK-001 MICRO #433983,485684,488289, 526537,545300
Listing City
Pine City
Map Page
999
Municipality
Rock Creek
School District
Pine City
School District Phone
320-629-4010
Zip Plus 4
1467
Property ID Number
0435090000
Tax Year
2025
Tax Amount
948
In Foreclosure?
No
Potential Short Sale?
No
Lender Owned?
No

Directions & Remarks

Public Remarks
Come take a look at this new construction home in Rock Creek. The Quiet, Country Living Split Entry home is stunning at first glance. The adorable front porch, dual gable roof line and crisp charcoal siding offset by the crisp white trim and 3 car garage are the first things you will notice but they will not be the last. The interior features a nice foyer with entry from both the front door and garage service door along with 4 nice size bedrooms, 2 Full Bathrooms a basement family room that has a nook that will make a great office and a deck that overlooks the back of the 7+ acre lot. The finishes are not done yet so the sooner you get here the more of a chance you have to make some finishing choices. Pictures will be updated as things some together. Call with any questions and let your dreams run wild! Ask how much extra that pole barn you want will run you! See if the Deck can be made larger, multi-level or built to fit a hot tub. Hardwood floors? ALL Luxury Vinyl Planks? Your dreams are the guide here. Ask so we can see what we can do!
Directions
Interstate 35 to Rock Creek, Grantsburg Exit. East on highway 70 a bit past the second corner to Stephanie Lane. South (right) to home.

Accessible

None
Yes

Air Conditioning

Central Air
Yes

Amenities Unit

Deck
Yes
Washer/Dryer Hookup
Yes

Assumable Loan

Not Assumable
Yes

Bath Description

Upper Level Full Bath
Yes
Full Basement
Yes

Construction Materials

Frame
Yes

Construction Status

Completed New Construction
Yes

Dining Room Description

Informal Dining Room
Yes
Kitchen/Dining Room
Yes

Electric

200+ Amp Service
Yes
Circuit Breakers
Yes

Existing Financing

Other
Yes

Exterior

Aluminum Siding
Yes
Vinyl
Yes

Family Room Characteristics

Family Room
Yes
Lower Level
Yes

Foundation

Insulating Concrete Forms
Yes
Poured Concrete
Yes

Fuel

Propane
Yes

Heating

Forced Air
Yes

Insurance Fee

Insurance Fee
0

Laundry

Laundry Room
Yes
Lower Level
Yes
Sink
Yes
Washer Hookup
Yes

Patio, Porch and Deck Features

Deck
Yes
Front Porch
Yes

Property Subtype

Rural Residential
Yes

Road Frontage

City Street
Yes
No Outlet/Dead End
Yes
Unpaved Streets
Yes

Road Responsibility

Public Maintained Road
Yes

Roof

Age 8 Years or Less
Yes
Architectural Shingle
Yes

Sellers Terms

Adj. Rate/Gr Payment
Yes
Cash
Yes
Conventional
Yes
Federal Land Bank
Yes
FHA
Yes
MHFA/WHEDA
Yes
Other
Yes
Rural Development
Yes
VA
Yes

Sewer

Septic System Compliant - Yes
Yes

Stories

Bi-Level
Yes

Water

Well
Yes

Room Information

Dining Room Dimensions: 10 X 10 Level: Upper Family Room Dimensions: 18 X 15 Level: Lower First (1st) Bedroom Dimensions: 14 X 13 Level: Upper Fourth (4th) Bedroom Dimensions: 14 X 12 Foyer Dimensions: 13 X 9 Level: Main Foyer Dimensions: 13 X 9 Level: Main Kitchen Dimensions: 11 X 10 Level: Upper Laundry Dimensions: 10 X 7 Level: Lower Living Room Dimensions: 17 X 15 Level: Upper Office Dimensions: 10 X 9 Level: Lower Second (2nd) Bedroom Dimensions: 13 X 12 Level: Upper Third (3rd) Bedroom Dimensions: 14 X 13 Level: Lower
Listing Office: Frable Realty
IDX
Last Updated: April - 28 - 2026
The data relating to real estate for sale on this web site comes in part from the Broker Reciprocity SM Program of the Regional Multiple Listing Service of Minnesota, Inc. The information provided is deemed reliable but not guaranteed. Properties subject to prior sale, change or withdrawal. ©2024 Regional Multiple Listing Service of Minnesota, Inc All rights reserved.