Property Type:
Land
Lot Size (sq. ft.):
17,860
Status:
Active
Current Price:
$96,500
List Date:
3/25/2026
Last Modified:
4/07/2026
Overview
Description
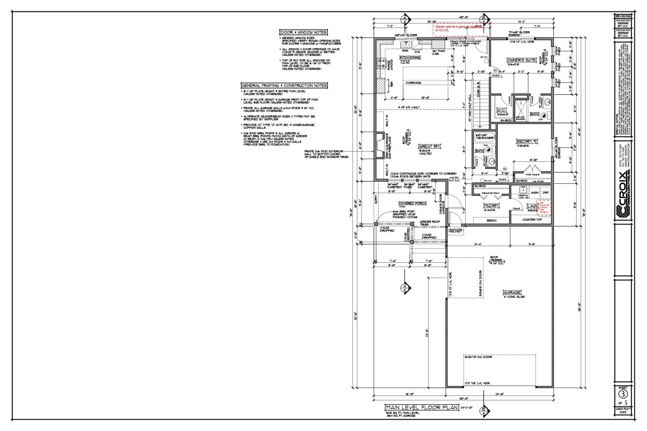
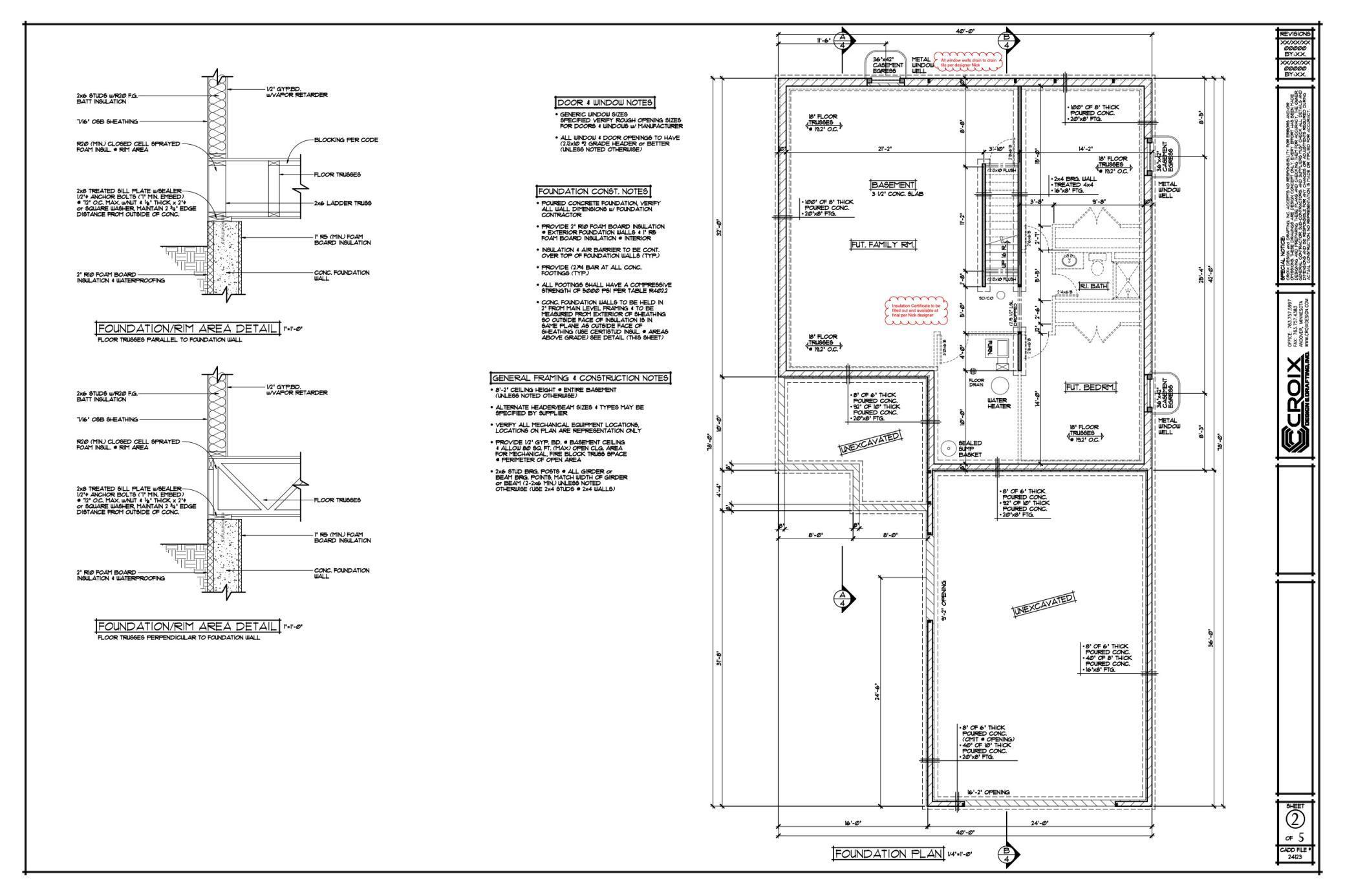
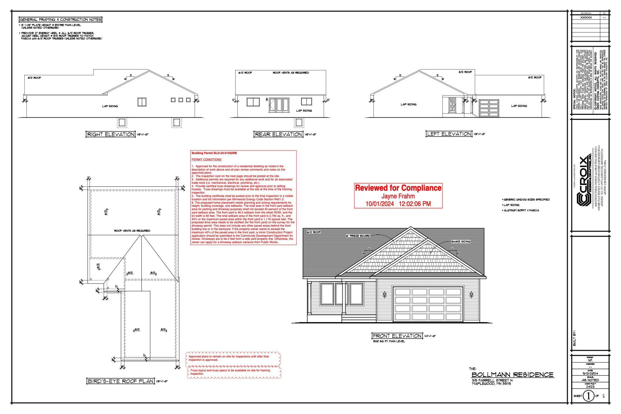
BUILD SMARTER, NOT SLOWER. THIS EXCEPTIONAL XL .41-ACRE LOT IN MAPLEWOOD OFFERS A RARE OPPORTUNITY TO SAVE MONTHS OF UPFRONT PLANNING AND DESIGN WORK. SELLER IS WILLING TO DO A CONTRACT FOR DEED AND IS INCLUDING $8,000 WORTH OF PREVIOUSLY CITY-APPROVED FLOOR PLANS, ELEVATIONS, AND SURVEY — GIVING YOU A SIGNIFICANT HEAD START TOWARD CONSTRUCTION.
WHILE PRIOR BUILDING PERMITS ARE NO LONGER TRANSFERABLE, THE PLANS WERE FULLY REVIEWED AND APPROVED BY THE CITY, PROVIDING A STRONG FOUNDATION FOR RE-SUBMITTAL AND LIKELY A MORE STREAMLINED APPROVAL PROCESS.
ORIGINALLY DESIGNED FOR A CUSTOM 4 BEDROOM HOME WITH A 3-CAR GARAGE, THE PLANS CAN BE MODIFIED TO ACCOMMODATE UP TO 6 BEDROOMS; OR BUILD YOUR OWN LARGER DREAM HOME. THE PROPERTY HAS APPROVAL FOR ITS OWN PRIVATE DRIVEWAY.
PREVIOUS HOME HAS ALREADY BEEN REMOVED, SAVING AN ESTIMATED $20,000+ IN DEMOLITION COSTS. LEVEL LOT WITH GRADUAL SLOPE TOWARD THE STREET FOR EXCELLENT DRAINAGE. NATURAL GAS, ELECTRIC, CABLE, CITY SEWER & WATER ARE AVAILABLE AT THE STREET FOR RECONNECTION.
12X10 SHED INCLUDED. FIREWOOD AND BUILDING MATERIALS CAN REMAIN IF BUYER PREFERS.
AVOID CROWDED DEVELOPMENTS AND COOKIE-CUTTER BUILDS -CREATE THE HOME YOU ACTUALLY WANT ON A SPACIOUS LOT IN A CONVENIENT LOCATION CLOSE TO 3M CAMPUS AND AMAZING WOODBURY RESTAURANTS AND SHOPPING.
SELLER PREFERS STRONG EARNEST MONEY AND STREAMLINED CONTINGENCY TIMELINES. BUYER TO VERIFY ALL INFORMATION.
Last Updated: April - 07 - 2026
The data relating to real estate for sale on this web site comes in part from the Broker
Reciprocity SM Program of the Regional Multiple Listing Service of Minnesota, Inc. The information provided is deemed reliable but not guaranteed. Properties subject to prior sale, change or withdrawal.
©2024 Regional Multiple Listing Service of Minnesota, Inc All rights reserved.