51 W Sarnia Street, Winona, MN 55987

New Listing
$950,000
Property Type: Residential Bedrooms: 5 Baths: 5 Square Footage: 5,637 Lot Size (sq. ft.): 20,909 Status: Active
Current Price: $950,000 List Date: 4/14/2026 Last Modified: 4/20/2026

Overview

Description

This stately 5 Bedroom, 5 Bathroom 1930 English Tudor offers an incredible location in the heart of Winona with sweeping views of the Bandshell, Veteran's Park, Lake Winona and Sugar Loaf. It is packed with charm inside and out. Adjacent to four city owned tennis/pickleball courts, it is situated on 3 city lots. The all-brick exterior has intricate pattern design and Biesanz stone highlights. A tile roof and leaded glass windows add to the curb appeal. Interior features include original hardwood floors, an updated kitchen with quartz countertops and custom tile bathrooms. The main level has 9-foot ceilings and beautifully textured plaster walls with crown molding. Each level has a stone, wood burning fireplace, spacious rooms and ample storage exists throughout. A Biesanz stone upper terrace walk was replaced in the late Fall of 2025 and new sod will complete the project in May. Every corner of this residence reflects nearly three decades of meticulous care and thoughtful updates, creating a sanctuary that is as move-in ready as it is soul-warming.

Listing Details MLS# 7055050

General Property Information

Common Wall
No
Lot Measurement
Acres
Manufactured Home?
No
Multiple PIDs?
Yes
New Development
No
Number of Fireplaces
3
Other Parking Spaces
3
Waterfront Present
Yes
Year Built
1930
Yearly/Seasonal
Yearly
Zoning
Residential-Single Family
Bath Full
Yes
Bath Three Quarters
2
Bath Half
2
Main Floor Total SqFt
1879
Above Grd Total SqFt
3758
Below Grd Total SqFt
1879
Total SqFt
5637
Total Finished Sqft
4308.00
FireplaceYN
Yes
Lake/Waterfront Name
Winona
Style
(SF) Single Family
Foundation Size
1879
Power Company
Xcel Energy
Garage Stalls
2
Lot Dimensions
150x145
Acres
0.48
Assessment Pending
No
Bath Quarter
0
Association Fee
0

Property Features

Accessible: None Air Conditioning: Central Air Amenities Unit: Cable; Ceiling Fan(s); French Doors; Hardwood Floors; In-Ground Sprinkler; Kitchen Window; Natural Woodwork; Paneled Doors; Panoramic View; Patio; Primary Bedroom Walk-In Closet; Security Lights; Tile Floors; Washer/Dryer Hookup Appliances: Cooktop; Dishwasher; Disposal; Dryer; Microwave; Refrigerator; Washer Basement: Concrete Block; Full; Partially Finished; Poured Concrete; Storage Space; Sump Pump Bath Description: Main Floor 1/2 Bath; Upper Level 3/4 Bath; Upper Level Full Bath; 3/4 Primary; Private Primary; 1/2 Basement; Bathroom Ensuite Construction Materials: Block; Brick; Concrete; Frame; Stone Construction Status: Previously Owned Dining Room Description: Breakfast Area; Separate/Formal Dining Room Electric: 200+ Amp Service; Circuit Breakers Exterior: Brick/Stone Family Room Characteristics: 2 or More; Family Room; Lower Level; Main Level Fencing: Invisible Fireplace Characteristics: Amusement Room; Living Room; Primary Bedroom; Wood Burning Foundation: Combination; Concrete Block Fuel: Natural Gas Heating: Baseboard; Boiler; Hot Water; Radiator Internet Options: Cable; Fiber Optic Laundry: Gas Dryer Hookup; In Basement; Washer Hookup Lock Box Type: None Lot Description: Property Adjoins Public Land; Public Transit (w/in 6 blks); Sod Included in Price; Tree Coverage - Light Outbuildings: Additional Garage Parking Characteristics: Garage Door Opener Pool Description: None Road Frontage: City Street; Storm Sewer; Street Lights Road Responsibility: Public Maintained Road Roof: Age 8 Years or Less; Age Over 8 Years; Pitched; Rubber; Tile Sewer: City Sewer/Connected Special Search: 4 BR on One Level; Primary Bdr Suite Stories: Two Water: City Water/Connected; Well

Contract Information

Contingency
None
Original List Price
950000
ListPrice
950000
Owner is an Agent?
Yes
Auction?
No

Location Tax and Other Information

House Number
51
Street Direction Prefix
W
Street Name
Sarnia
Street Suffix
Street
Postal City
Winona
County
Winona
State
MN
Zip Code
55987
Complex/Dev/Subdivision
Lakeview Add

Additional Parcels Information

Property ID #2
323100610

Assessments

Tax With Assessments
7014
Assessment Balance
0

More Information

Building Information

Finished SqFt Above Ground
3758
Finished SqFt Below Ground
550

Lake Details

Lake Acres
308
Lake Depth
38

Lease Details

Land Leased
Not Applicable

Miscellaneous Information

Homestead
No

Ownership

Fractional Ownership
No

Parking Characteristics

Garage Dimensions
22x23
Garage Door Height
7
Garage Door Width
16
Garage Square Feet
506
Garage Door Opener
Yes

Public Survey Info

Range#
07
Section#
27
Township#
107

Office/Member Info

Association
SEMR

Location, Tax and Other Information

AssocFeeYN
No
Legal Description
SECT-27 TWP-107 RANGE-007 LAKEVIEW ADDITION BLOCK-019 E 90' OF N 1/2 BLANK BLK
Listing City
Winona
Map Page
999
Municipality
Winona
School District
Winona Area Public Schools
School District Phone
507-494-0861
DNR Lake ID#
85001100
DNR Lake Classification
Not Applicable
Zip Plus 4
3678
Property ID Number
323100630
Tax Year
2026
Tax Amount
7014
In Foreclosure?
No
Potential Short Sale?
No
Lender Owned?
No

Directions & Remarks

Public Remarks
This stately 5 Bedroom, 5 Bathroom 1930 English Tudor offers an incredible location in the heart of Winona with sweeping views of the Bandshell, Veteran's Park, Lake Winona and Sugar Loaf. It is packed with charm inside and out. Adjacent to four city owned tennis/pickleball courts, it is situated on 3 city lots. The all-brick exterior has intricate pattern design and Biesanz stone highlights. A tile roof and leaded glass windows add to the curb appeal. Interior features include original hardwood floors, an updated kitchen with quartz countertops and custom tile bathrooms. The main level has 9-foot ceilings and beautifully textured plaster walls with crown molding. Each level has a stone, wood burning fireplace, spacious rooms and ample storage exists throughout. A Biesanz stone upper terrace walk was replaced in the late Fall of 2025 and new sod will complete the project in May. Every corner of this residence reflects nearly three decades of meticulous care and thoughtful updates, creating a sanctuary that is as move-in ready as it is soul-warming.
Directions
Sarnia Street, one block East of Main Street....House is on the right.

Accessible

None
Yes

Air Conditioning

Central Air
Yes

Amenities Unit

Cable
Yes
Ceiling Fan(s)
Yes
French Doors
Yes
Hardwood Floors
Yes
In-Ground Sprinkler
Yes
Kitchen Window
Yes
Natural Woodwork
Yes
Paneled Doors
Yes
Panoramic View
Yes
Patio
Yes
Primary Bedroom Walk-In Closet
Yes
Security Lights
Yes
Tile Floors
Yes
Washer/Dryer Hookup
Yes

Appliances

Cooktop
Yes
Dishwasher
Yes
Disposal
Yes
Dryer
Yes
Microwave
Yes
Refrigerator
Yes
Washer
Yes

Basement

Concrete Block
Yes
Full
Yes
Partially Finished
Yes
Poured Concrete
Yes
Storage Space
Yes
Sump Pump
Yes

Bath Description

Main Floor 1/2 Bath
Yes
Upper Level 3/4 Bath
Yes
Upper Level Full Bath
Yes
3/4 Primary
Yes
Private Primary
Yes
1/2 Basement
Yes
Bathroom Ensuite
Yes

Construction Materials

Block
Yes
Brick
Yes
Concrete
Yes
Frame
Yes
Stone
Yes

Construction Status

Previously Owned
Yes

Dining Room Description

Breakfast Area
Yes
Separate/Formal Dining Room
Yes

Electric

200+ Amp Service
Yes
Circuit Breakers
Yes

Exterior

Brick/Stone
Yes

Family Room Characteristics

2 or More
Yes
Family Room
Yes
Lower Level
Yes
Main Level
Yes

Fencing

Invisible
Yes

Fireplace Characteristics

Amusement Room
Yes
Living Room
Yes
Primary Bedroom
Yes
Wood Burning
Yes

Foundation

Combination
Yes
Concrete Block
Yes

Fuel

Natural Gas
Yes

Heating

Baseboard
Yes
Boiler
Yes
Hot Water
Yes
Radiator
Yes

Insurance Fee

Insurance Fee
0

Internet Options

Cable
Yes
Fiber Optic
Yes

Lake/Waterfront

Lake Front
Yes

Laundry

Gas Dryer Hookup
Yes
In Basement
Yes
Washer Hookup
Yes

Lock Box Type

None
Yes

Lot Description

Property Adjoins Public Land
Yes
Public Transit (w/in 6 blks)
Yes
Sod Included in Price
Yes
Tree Coverage - Light
Yes

Outbuildings

Additional Garage
Yes

Patio, Porch and Deck Features

Patio
Yes

Pool Description

None
Yes

Road Frontage

City Street
Yes
Storm Sewer
Yes
Street Lights
Yes

Road Responsibility

Public Maintained Road
Yes

Roof

Age 8 Years or Less
Yes
Age Over 8 Years
Yes
Pitched
Yes
Rubber
Yes
Tile
Yes

Sewer

City Sewer/Connected
Yes

Special Search

4 BR on One Level
Yes
Primary Bdr Suite
Yes

Stories

Two
Yes

Water

City Water/Connected
Yes
Well
Yes

Room Information

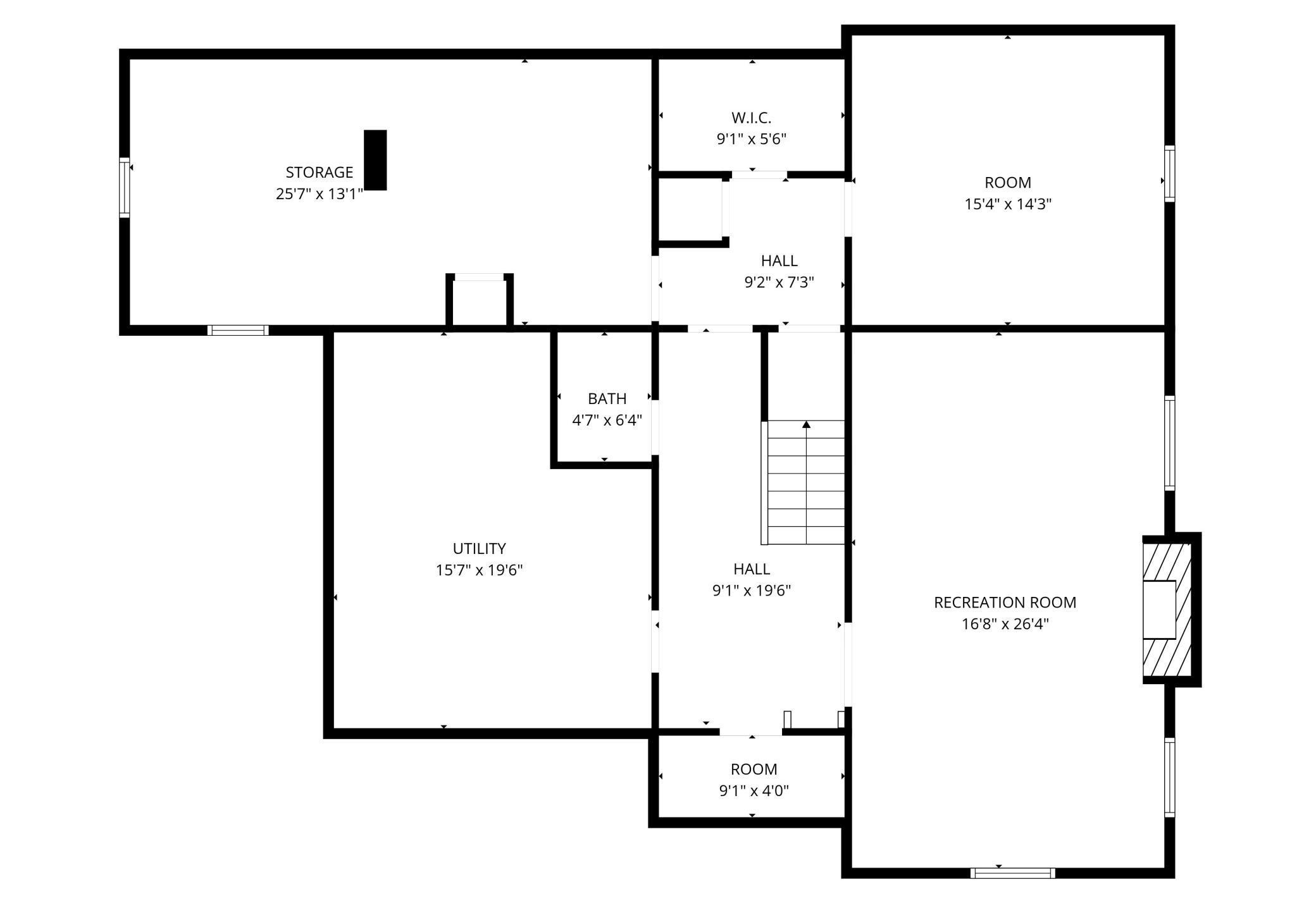
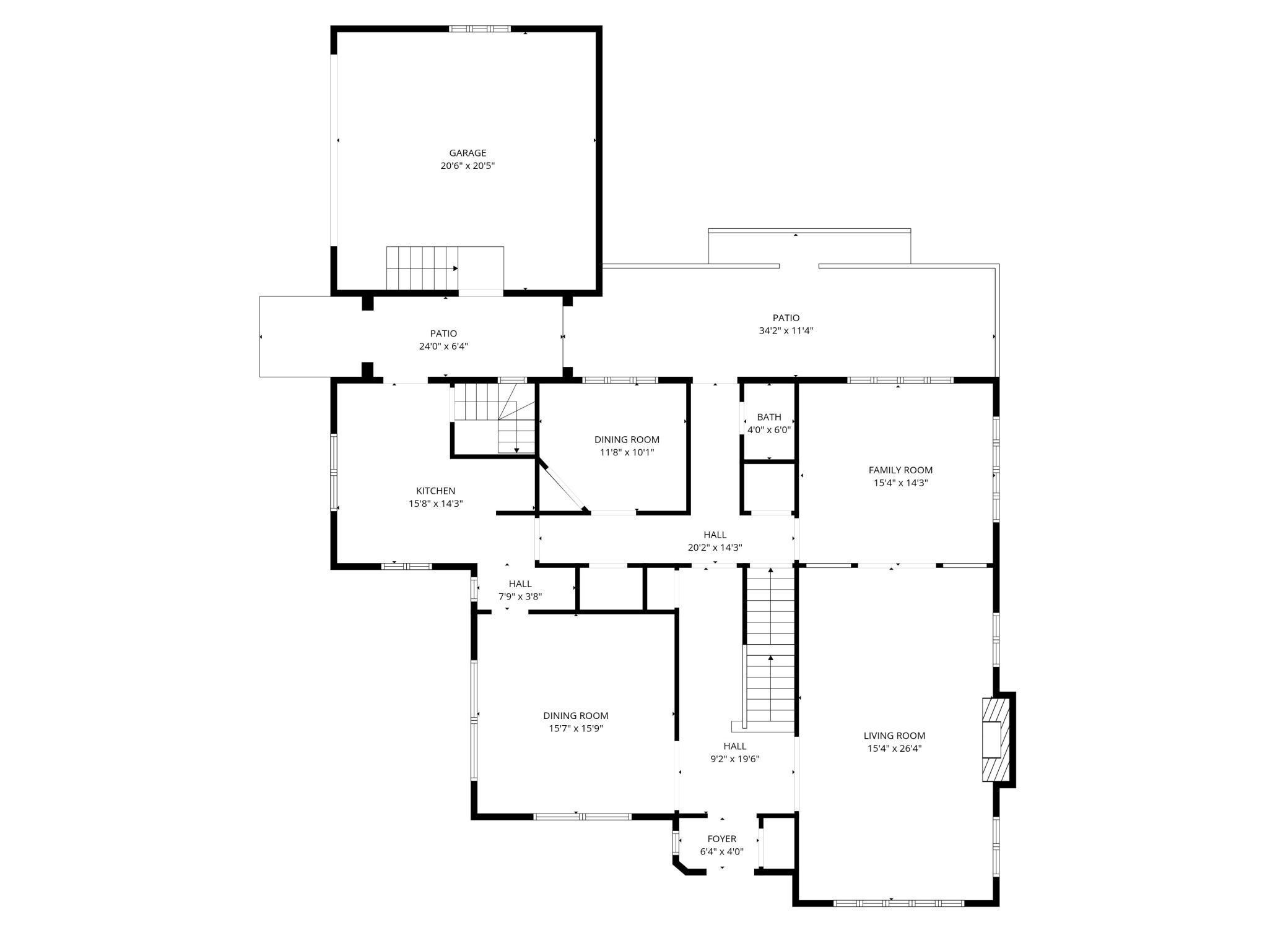
Amusement Room Dimensions: 14x26 Level: Lower Bathroom Dimensions: 4x5 Level: Main Bathroom Dimensions: 9x9 Level: Upper Dining Room Dimensions: 15x16 Level: Main Dining Room Dimensions: 9x11 Level: Main Family Room Dimensions: 15x15 Level: Main Fifth (5th) Bedroom Dimensions: 10x12 Level: Upper First (1st) Bedroom Dimensions: 15x19 Level: Upper Fourth (4th) Bedroom Dimensions: 10x16 Level: Upper Kitchen Dimensions: 14x15 Level: Main Living Room Dimensions: 15x26 Level: Main Primary Bath Dimensions: 7x15 Level: Upper Second (2nd) Bedroom Dimensions: 15x16 Level: Upper Third (3rd) Bedroom Dimensions: 14x15 Level: Upper
Listing Office: Coldwell Banker River Valley, REALTORS
IDX
Last Updated: April - 20 - 2026
The data relating to real estate for sale on this web site comes in part from the Broker Reciprocity SM Program of the Regional Multiple Listing Service of Minnesota, Inc. The information provided is deemed reliable but not guaranteed. Properties subject to prior sale, change or withdrawal. ©2024 Regional Multiple Listing Service of Minnesota, Inc All rights reserved.