5016 Schaefer Road, Edina, MN 55436

$4,875,000
Property Type: Residential Bedrooms: 5 Baths: 8 Square Footage: 9,720 Lot Size (sq. ft.): 63,162 Status: Closed
Current Price: $4,875,000 List Date: 10/10/2023 Last Modified: 8/06/2025

Overview

Description

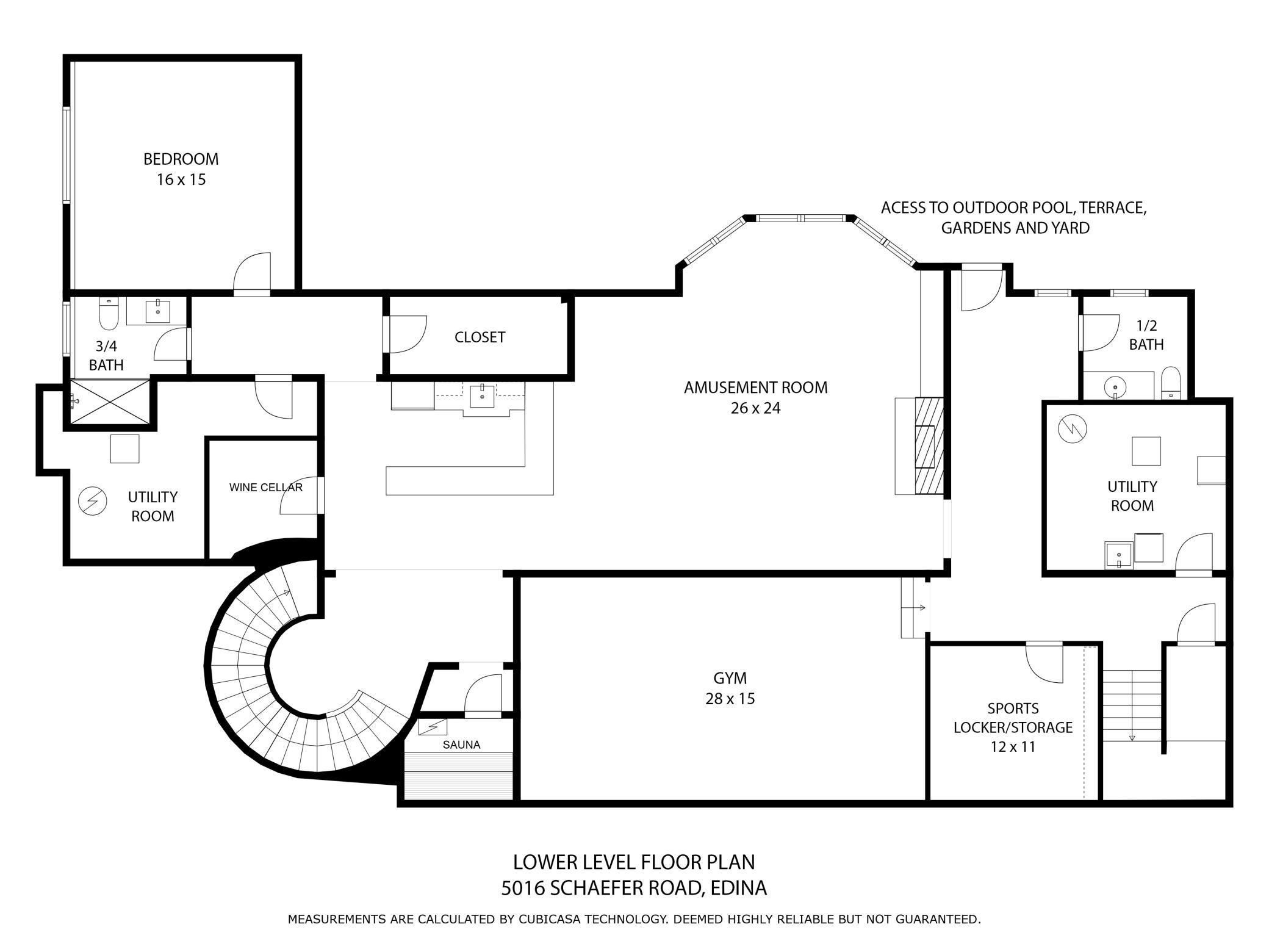
SOLD BEFORE PRINT. This stunning home was built by Charles Cudd in 2007, and extensively and thoughtfully updated by the current owners in 2018 working with PKA Architecture, Welch Forsman, and Engler Studio. The setting on a nearly 1.5 acre lot with southern exposure and water views is a rare find. Great floor plan with 4 bedrooms on the Upper Level. Primary includes two bathrooms and large WIC. 3 other bedrooms include ensuite baths. Large laundry on 2nd floor. Main floor offers a renovated living area, opened to enhance connections and sightlines. Gorgeous, functional Kitchen with large center island. Separate office space opens to patio. Mudroom, Butler Pantry, and planning center/office surround the 3 car attached garage. Lower Level includes guest bedroom, bath, wine storage, new sauna, bar, amusement room, gym/sport room, sport locker, additional half bath. New rear outdoor spa and patio recently constructed adjacent to updated Pool. Superbly maintained!

Listing Details MLS# 6394061

General Property Information

Common Wall
No
Lot Measurement
Acres
Manufactured Home?
No
Multiple PIDs?
No
New Development
No
Number of Fireplaces
3
Waterfront Present
No
Year Built
2007
Yearly/Seasonal
Yearly
Zoning
Residential-Single Family
Bath Full
2
Bath Three Quarters
4
Bath Half
2
Main Floor Total SqFt
3267
Above Grd Total SqFt
6478
Below Grd Total SqFt
3242
Total SqFt
9720
Total Finished Sqft
8893.00
FireplaceYN
Yes
Style
(SF) Single Family
Foundation Size
3242
Power Company
Xcel Energy
Garage Stalls
3
Lot Dimensions
Irregular
Acres
1.45
# Carport Spaces
0
Bath Quarter
0
Association Fee
0

Property Features

Accessible: None Air Conditioning: Central Air Amenities Unit: Balcony; Ceiling Fan(s); Exercise Room; French Doors; Hardwood Floors; Hot Tub; In-Ground Sprinkler; Kitchen Center Island; Kitchen Window; Natural Woodwork; Panoramic View; Patio; Primary Bedroom Walk-In Closet; Sauna; Security System; Tile Floors; Vaulted Ceiling(s); Walk-In Closet; Washer/Dryer Hookup; Wet Bar Appliances: Air-To-Air Exchanger; Dishwasher; Disposal; Dryer; Microwave; Range; Refrigerator; Washer; Water Osmosis System Basement: Concrete Block; Drain Tiled; Full; Poured Concrete; Sump Pump Bath Description: Double Sink; Main Floor 1/2 Bath; Upper Level 3/4 Bath; Upper Level Full Bath; 3/4 Primary; Full Primary; Private Primary; Two Primary Baths; 1/2 Basement; 3/4 Basement; Two Basement Baths; Bathroom Ensuite; Jetted Tub; Separate Tub & Shower Construction Status: Previously Owned Dining Room Description: Breakfast Area; Breakfast Bar; Separate/Formal Dining Room Electric: Circuit Breakers Exterior: Stucco Family Room Characteristics: 2 or More; 2 Story/High/Vaulted Ceilings; Entertainment/Media Center; Lower Level; Main Level Fencing: Partial Financing Terms: Conventional Fireplace Characteristics: Amusement Room; Family Room; Gas Burning; Living Room; Wood Burning Fuel: Natural Gas Heating: Forced Air; In-Floor Heating Laundry: Laundry Room; Upper Level Lot Description: Tree Coverage - Medium Parking Characteristics: Garage Door Opener; Heated Garage; Insulated Garage Pool Description: Below Ground; Heated Road Frontage: City Street; Paved Streets Road Responsibility: Public Maintained Road Roof: Age Over 8 Years; Tile Sellers Terms: Cash; Conventional Sewer: City Sewer/Connected Special Search: 2nd Floor Laundry; 3 BR on One Level; 4 BR on One Level; Primary Bdr Suite Stories: Two Water: City Water/Connected

Contract Information

Off Market Date
2023-10-10
Contingency
None
Closed Date
2023-11-01
Original List Price
5250000
Sales Close Price
4875000
ListPrice
5250000
Owner is an Agent?
No
Auction?
No

Location Tax and Other Information

House Number
5016
Street Name
Schaefer
Street Suffix
Road
Postal City
Edina
County
Hennepin
State
MN
Zip Code
55436
Complex/Dev/Subdivision
Harold Woods 3rd Add

Assessments

Tax With Assessments
51268
Assessment Balance
0

Building Information

Finished SqFt Above Ground
6478
Finished SqFt Below Ground
2415

More Information

Lease Details

Land Leased
Not Applicable

Miscellaneous Information

Homestead
Yes

Ownership

Fractional Ownership
No

Parking Characteristics

Garage Dimensions
41x24
Garage Square Feet
1128
Garage Door Opener
Yes
Heated Garage
Yes
Insulated Garage
Yes

Public Survey Info

Range#
21
Section#
30
Township#
117

Office/Member Info

Association
MAAR
MLSID
RMLS

Location, Tax and Other Information

AssocFeeYN
No
Legal Description
LOT 001 BLOCK 001 HAROLD WOODS 3RD ADDN
Listing City
Edina
Map Page
119
Municipality
Edina
Rental License?
No
School District
Hopkins
School District Phone
952-988-4000
Zip Plus 4
1143
Property ID Number
3011721420022
Tax Year
2023
Tax Amount
51268
In Foreclosure?
No
Potential Short Sale?
No
Lender Owned?
No

Directions & Remarks

Public Remarks
SOLD BEFORE PRINT. This stunning home was built by Charles Cudd in 2007, and extensively and thoughtfully updated by the current owners in 2018 working with PKA Architecture, Welch Forsman, and Engler Studio. The setting on a nearly 1.5 acre lot with southern exposure and water views is a rare find. Great floor plan with 4 bedrooms on the Upper Level. Primary includes two bathrooms and large WIC. 3 other bedrooms include ensuite baths. Large laundry on 2nd floor. Main floor offers a renovated living area, opened to enhance connections and sightlines. Gorgeous, functional Kitchen with large center island. Separate office space opens to patio. Mudroom, Butler Pantry, and planning center/office surround the 3 car attached garage. Lower Level includes guest bedroom, bath, wine storage, new sauna, bar, amusement room, gym/sport room, sport locker, additional half bath. New rear outdoor spa and patio recently constructed adjacent to updated Pool. Superbly maintained!
Directions
Corner of Schaefer Road and Harold Woods Lane.

Accessible

None
Yes

Air Conditioning

Central Air
Yes

Amenities Unit

Balcony
Yes
Ceiling Fan(s)
Yes
Exercise Room
Yes
French Doors
Yes
Hardwood Floors
Yes
Hot Tub
Yes
In-Ground Sprinkler
Yes
Kitchen Center Island
Yes
Kitchen Window
Yes
Natural Woodwork
Yes
Panoramic View
Yes
Patio
Yes
Primary Bedroom Walk-In Closet
Yes
Sauna
Yes
Security System
Yes
Tile Floors
Yes
Vaulted Ceiling(s)
Yes
Walk-In Closet
Yes
Washer/Dryer Hookup
Yes
Wet Bar
Yes

Appliances

Air-To-Air Exchanger
Yes
Dishwasher
Yes
Disposal
Yes
Dryer
Yes
Microwave
Yes
Range
Yes
Refrigerator
Yes
Washer
Yes
Water Osmosis System
Yes

Basement

Concrete Block
Yes
Drain Tiled
Yes
Full
Yes
Poured Concrete
Yes
Sump Pump
Yes

Bath Description

Double Sink
Yes
Main Floor 1/2 Bath
Yes
Upper Level 3/4 Bath
Yes
Upper Level Full Bath
Yes
3/4 Primary
Yes
Full Primary
Yes
Private Primary
Yes
Two Primary Baths
Yes
1/2 Basement
Yes
3/4 Basement
Yes
Two Basement Baths
Yes
Bathroom Ensuite
Yes
Jetted Tub
Yes
Separate Tub & Shower
Yes

Construction Status

Previously Owned
Yes

Dining Room Description

Breakfast Area
Yes
Breakfast Bar
Yes
Separate/Formal Dining Room
Yes

Electric

Circuit Breakers
Yes

Exterior

Stucco
Yes

Family Room Characteristics

2 or More
Yes
2 Story/High/Vaulted Ceilings
Yes
Entertainment/Media Center
Yes
Lower Level
Yes
Main Level
Yes

Fencing

Partial
Yes

Financing Terms

Conventional
Yes

Fireplace Characteristics

Amusement Room
Yes
Family Room
Yes
Gas Burning
Yes
Living Room
Yes
Wood Burning
Yes

Fuel

Natural Gas
Yes

Heating

Forced Air
Yes
In-Floor Heating
Yes

Insurance Fee

Insurance Fee
0

Lake/Waterfront

Pond
Yes

Laundry

Laundry Room
Yes
Upper Level
Yes

Lot Description

Tree Coverage - Medium
Yes

Patio, Porch and Deck Features

Patio
Yes
Terrace
Yes

Pool Description

Below Ground
Yes
Heated
Yes

Road Frontage

City Street
Yes
Paved Streets
Yes

Road Responsibility

Public Maintained Road
Yes

Roof

Age Over 8 Years
Yes
Tile
Yes

Sellers Terms

Cash
Yes
Conventional
Yes

Sewer

City Sewer/Connected
Yes

Special Search

2nd Floor Laundry
Yes
3 BR on One Level
Yes
4 BR on One Level
Yes
Primary Bdr Suite
Yes

Stories

Two
Yes

Water

City Water/Connected
Yes

Room Information

Family Room Dimensions: 18x17 Level: Main Laundry Dimensions: 15x11 Level: Upper Fifth (5th) Bedroom Dimensions: 16x15 Level: Lower Office Dimensions: 17x16 Level: Main Amusement Room Dimensions: 26x24 Level: Lower Kitchen Dimensions: 19x15 Level: Main Exercise Room Dimensions: 28x15 Level: Lower Informal Dining Room Dimensions: 18x9 Level: Main First (1st) Bedroom Dimensions: 21x20 Level: Upper Second (2nd) Bedroom Dimensions: 19x14 Level: Upper Living Room Dimensions: 19x17 Level: Main Third (3rd) Bedroom Dimensions: 16x14 Level: Upper Dining Room Dimensions: 19x12 Level: Main Fourth (4th) Bedroom Dimensions: 14x14 Level: Upper
Listing Office: Coldwell Banker Realty - Lakes
IDX
Last Updated: August - 06 - 2025
The data relating to real estate for sale on this web site comes in part from the Broker Reciprocity SM Program of the Regional Multiple Listing Service of Minnesota, Inc. The information provided is deemed reliable but not guaranteed. Properties subject to prior sale, change or withdrawal. ©2024 Regional Multiple Listing Service of Minnesota, Inc All rights reserved.