414 3rd Avenue E, Osceola, WI 54020

New Listing
$234,900
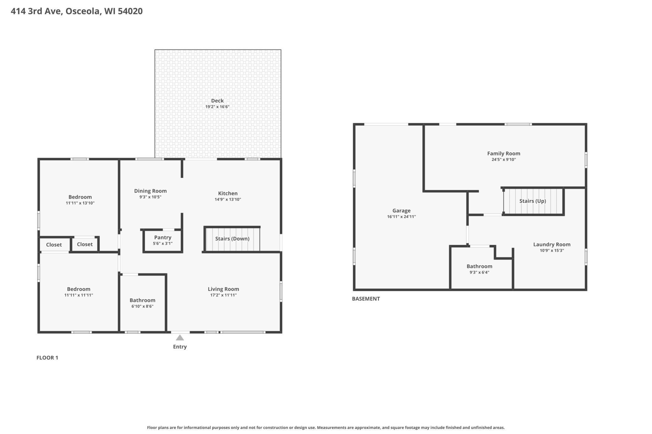
Property Type: Residential Bedrooms: 2 Baths: 2 Square Footage: 1,551 Lot Size (sq. ft.): 9,583 Status: Active
Current Price: $234,900 List Date: 4/03/2026 Last Modified: 4/07/2026

Overview

Description

Darling 2+ bedroom, 2 bath move-in ready home in a highly walkable location! This well-maintained home blends charm with modern updates, featuring beautiful original white oak hardwood floors & new central air added in 2023. Extensive renovations in 2020-2021 include updated electrical(except range & dryer), PEX plumbing, stylish new lighting, and a fully remodeled main floor bath. The current dinning room was previously used as a bedroom & could easily be converted back, offering flexible living space to fit your needs. The walkout lower level offers a cozy family room, 3/4 bath, & convenient laundry space. Step outside to the deck & enjoy peaceful views of wildlife & scenic Osceola Creek. Located within walking distance to trails, parks, & downtown amenities, this home offers the perfect balance of convenience & natural beauty.

Listing Details MLS# 7047107

General Property Information

Common Wall
No
Lot Measurement
Acres
Manufactured Home?
No
Multiple PIDs?
No
New Development
No
Waterfront Present
No
Year Built
1960
Yearly/Seasonal
Yearly
Zoning
Residential-Single Family
Bath Full
Yes
Bath Three Quarters
Yes
Main Floor Total SqFt
988
Above Grd Total SqFt
988
Below Grd Total SqFt
563
Total SqFt
1551
Total Finished Sqft
1410.00
FireplaceYN
No
Style
(SF) Single Family
Foundation Size
988
Garage Stalls
Yes
Lot Dimensions
0x0
Acres
0.22
Assessment Pending
No
Number of Fireplaces
0
Bath Half
0
Bath Quarter
0
Association Fee
0

Property Features

Accessible: None Air Conditioning: Central Air Amenities Unit: Ceiling Fan(s); Deck; Hardwood Floors; Kitchen Window; Washer/Dryer Hookup Appliances: Dishwasher; Dryer; Microwave; Range; Refrigerator; Washer Assumable Loan: Not Assumable Basement: Concrete Block Bath Description: Main Floor Full Bath; 3/4 Basement Construction Materials: Block; Frame Construction Status: Previously Owned Dining Room Description: Informal Dining Room Electric: 150 Amp Service; Circuit Breakers Exterior: Vinyl Family Room Characteristics: Family Room; Lower Level Foundation: Concrete Block Fuel: Natural Gas Heating: Forced Air Laundry: Electric Dryer Hookup; In Basement; Laundry Room; Washer Hookup Lock Box Type: Combo Lot Description: Tree Coverage - Light Parking Characteristics: Floor Drain; Tuckunder Garage Property Subtype: Ranch-Style Home Road Frontage: City Street; Paved Streets; Sidewalks Road Responsibility: Public Maintained Road Roof: Age Over 8 Years; Asphalt Shingles; Pitched Sewer: City Sewer/Connected Special Search: Main Floor Bedroom Stories: One Water: City Water/Connected

Contract Information

Contingency
Other
Original List Price
234900
ListPrice
234900
Owner is an Agent?
No
Auction?
No

Location Tax and Other Information

House Number
414
Street Name
3rd
Street Suffix
Avenue
Street Direction Suffix
E
Postal City
Osceola
County
Polk
State
WI
Zip Code
54020
Complex/Dev/Subdivision
Outlots V Osceola

Assessments

Tax With Assessments
2832
Assessment Balance
0

Building Information

Finished SqFt Above Ground
988
Finished SqFt Below Ground
422

More Information

Lease Details

Land Leased
Not Applicable

Miscellaneous Information

DP Resource
Yes
Homestead
Yes

Ownership

Fractional Ownership
No

Parking Characteristics

Garage Dimensions
17x25
Garage Square Feet
425
Floor Drain
Yes
Tuckunder Garage
Yes

Public Survey Info

Range#
19W
Section#
27
Township#
33N

Office/Member Info

Association
WWRA

Location, Tax and Other Information

AssocFeeYN
No
Legal Description
ELY 60' OUTLOT 101 & PT OUTLOT 107 DESC IN V879 PG 164 OF THE OUTLOT PLAT LOC IN THE VILLAGE OF OSCEOLA (SOMETIMES INCORRECTLY REFERRED TO AS THE ASSESSORS PLAT)
Listing City
Osceola
Map Page
28
Municipality
Osceola
School District
Osceola
School District Phone
715-294-4140
Zip Plus 4
8170
Property ID Number
165005130000
Tax Year
2025
Tax Amount
2832
In Foreclosure?
No
Potential Short Sale?
No
Lender Owned?
No

Directions & Remarks

Public Remarks
Darling 2+ bedroom, 2 bath move-in ready home in a highly walkable location! This well-maintained home blends charm with modern updates, featuring beautiful original white oak hardwood floors & new central air added in 2023. Extensive renovations in 2020-2021 include updated electrical(except range & dryer), PEX plumbing, stylish new lighting, and a fully remodeled main floor bath. The current dinning room was previously used as a bedroom & could easily be converted back, offering flexible living space to fit your needs. The walkout lower level offers a cozy family room, 3/4 bath, & convenient laundry space. Step outside to the deck & enjoy peaceful views of wildlife & scenic Osceola Creek. Located within walking distance to trails, parks, & downtown amenities, this home offers the perfect balance of convenience & natural beauty.
Directions
From Osceola, 3rd Ave East to property on the South side of the street.

Accessible

None
Yes

Air Conditioning

Central Air
Yes

Amenities Unit

Ceiling Fan(s)
Yes
Deck
Yes
Hardwood Floors
Yes
Kitchen Window
Yes
Washer/Dryer Hookup
Yes

Appliances

Dishwasher
Yes
Dryer
Yes
Microwave
Yes
Range
Yes
Refrigerator
Yes
Washer
Yes

Assumable Loan

Not Assumable
Yes

Basement

Concrete Block
Yes

Bath Description

Main Floor Full Bath
Yes
3/4 Basement
Yes

Construction Materials

Block
Yes
Frame
Yes

Construction Status

Previously Owned
Yes

Dining Room Description

Informal Dining Room
Yes

Electric

150 Amp Service
Yes
Circuit Breakers
Yes

Exterior

Vinyl
Yes

Family Room Characteristics

Family Room
Yes
Lower Level
Yes

Foundation

Concrete Block
Yes

Fuel

Natural Gas
Yes

Heating

Forced Air
Yes

Insurance Fee

Insurance Fee
0

Laundry

Electric Dryer Hookup
Yes
In Basement
Yes
Laundry Room
Yes
Washer Hookup
Yes

Lock Box Type

Combo
Yes

Lot Description

Tree Coverage - Light
Yes

Patio, Porch and Deck Features

Deck
Yes

Property Subtype

Ranch-Style Home
Yes

Road Frontage

City Street
Yes
Paved Streets
Yes
Sidewalks
Yes

Road Responsibility

Public Maintained Road
Yes

Roof

Age Over 8 Years
Yes
Asphalt Shingles
Yes
Pitched
Yes

Sewer

City Sewer/Connected
Yes

Special Search

Main Floor Bedroom
Yes

Stories

One
Yes

Water

City Water/Connected
Yes

Room Information

Bathroom Dimensions: 7x8 Level: Main Bathroom Dimensions: 9x6 Level: Lower Dining Room Dimensions: 9x11 Level: Main Family Room Dimensions: 24x10 Level: Lower First (1st) Bedroom Dimensions: 12x12 Level: Main Kitchen Dimensions: 14x14 Level: Main Laundry Dimensions: 11x15 Level: Lower Living Room Dimensions: 17x12 Level: Main Second (2nd) Bedroom Dimensions: 12x13 Level: Main

Documents

Listing Office: Keller Williams Integrity WI/MN
IDX
Last Updated: April - 07 - 2026
The data relating to real estate for sale on this web site comes in part from the Broker Reciprocity SM Program of the Regional Multiple Listing Service of Minnesota, Inc. The information provided is deemed reliable but not guaranteed. Properties subject to prior sale, change or withdrawal. ©2024 Regional Multiple Listing Service of Minnesota, Inc All rights reserved.