401 Grace Street, Saint Peter, MN 56082

New Listing
$232,000
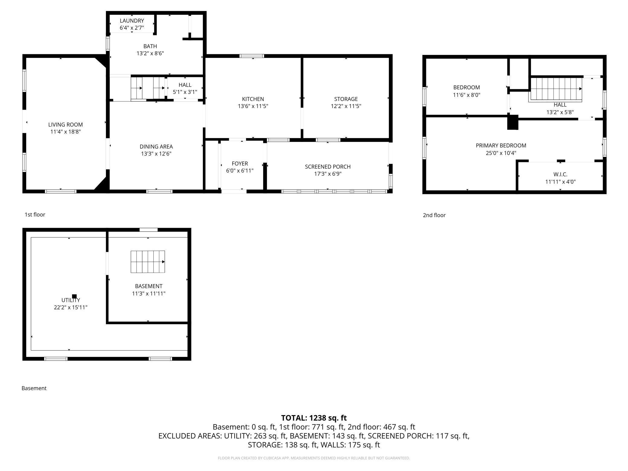
Property Type: Residential Bedrooms: 2 Baths: 1 Square Footage: 1,689 Lot Size (sq. ft.): 5,663 Status: Active
Current Price: $232,000 List Date: 4/20/2026 Last Modified: 4/20/2026

Overview

Description

Charming and well-maintained 2-bedroom, 1-bath home located in a highly desirable area in town! Step inside to find beautiful hardwood floors that flow throughout the main level, along with a spacious living room, a separate dining room, full bathroom, and main-floor laundry. The updated kitchen offers a fresh and functional space, with additional unfinished square footage for storage. Both bedrooms are conveniently located upstairs, providing a nice sense of separation and privacy. Outside, enjoy the benefits of a heated 2-stall garage and a fully fenced backyard. Whether you're looking for a personal residence or an investment opportunity, this home is already equipped with a rental license, adding excellent flexibility and value. A great opportunity in a fantastic location--don’t miss it!

Listing Details MLS# 7058520

General Property Information

Common Wall
No
Lot Measurement
Acres
Manufactured Home?
No
Multiple PIDs?
No
New Development
No
Waterfront Present
No
Year Built
1890
Yearly/Seasonal
Yearly
Zoning
Residential-Single Family
Bath Full
Yes
Main Floor Total SqFt
451
Above Grd Total SqFt
1238
Below Grd Total SqFt
451
Total SqFt
1689
Total Finished Sqft
1238.00
FireplaceYN
No
Style
(SF) Single Family
Foundation Size
451
Garage Stalls
2
Lot Dimensions
42x132
Acres
0.13
Assessment Pending
Unknown
Number of Fireplaces
0
Bath Three Quarters
0
Bath Half
0
Bath Quarter
0
Association Fee
0

Property Features

Accessible: None Air Conditioning: Central Air Amenities Unit: Porch; Washer/Dryer Hookup Appliances: Dishwasher; Dryer; Microwave; Refrigerator; Washer Basement: Partial Bath Description: Main Floor Full Bath Construction Materials: Frame Construction Status: Previously Owned Dining Room Description: Separate/Formal Dining Room Electric: Circuit Breakers Exterior: Vinyl Family Room Characteristics: Main Level Fencing: Composite; Full Foundation: Concrete Block; Stone Fuel: Natural Gas Heating: Forced Air Laundry: Main Level Lock Box Type: Combo Lot Description: Corner Lot Rental License Type: Standard Road Frontage: City Street Road Responsibility: Public Maintained Road Roof: Asphalt Shingles Sellers Terms: Cash; Conventional Sewer: City Sewer/Connected Stories: One and One Half Water: City Water/Connected

Contract Information

Contingency
None
Original List Price
232000
ListPrice
232000
Owner is an Agent?
No
Auction?
No

Location Tax and Other Information

House Number
401
Street Name
Grace
Street Suffix
Street
Postal City
Saint Peter
County
Nicollet
State
MN
Zip Code
56082
Complex/Dev/Subdivision
Amended

Assessments

Assessment Installment
21
Tax With Assessments
2416
Assessment Balance
0

Building Information

Finished SqFt Above Ground
1238

More Information

Lease Details

Land Leased
Not Applicable

Lock Box Type

Lock Box Source
RASM
Combo
Yes

Miscellaneous Information

Homestead
Yes

Ownership

Fractional Ownership
No

Parking Characteristics

Garage Square Feet
576

Office/Member Info

Association
MAAR

Location, Tax and Other Information

AssocFeeYN
No
Legal Description
BLOCK 136 LOT E 42' OF LOT 6 SUBDIVISIONCD 19412 SUBDIVISIONNAME AMENDED PLAT
Listing City
Saint Peter
Map Page
999
Municipality
Saint Peter
School District
St. Peter
School District Phone
507-934-5703
Zip Plus 4
1465
Property ID Number
194121410
Tax Year
2026
Tax Amount
2395
In Foreclosure?
No
Potential Short Sale?
No
Lender Owned?
No

Directions & Remarks

Public Remarks
Charming and well-maintained 2-bedroom, 1-bath home located in a highly desirable area in town! Step inside to find beautiful hardwood floors that flow throughout the main level, along with a spacious living room, a separate dining room, full bathroom, and main-floor laundry. The updated kitchen offers a fresh and functional space, with additional unfinished square footage for storage. Both bedrooms are conveniently located upstairs, providing a nice sense of separation and privacy. Outside, enjoy the benefits of a heated 2-stall garage and a fully fenced backyard. Whether you're looking for a personal residence or an investment opportunity, this home is already equipped with a rental license, adding excellent flexibility and value. A great opportunity in a fantastic location--don’t miss it!
Directions
From HWY 169, turn west on Broadway Ave, south on 4th Street, home is on the corner of Grace Street and 4th Street

Accessible

None
Yes

Air Conditioning

Central Air
Yes

Amenities Unit

Porch
Yes
Washer/Dryer Hookup
Yes

Appliances

Dishwasher
Yes
Dryer
Yes
Microwave
Yes
Refrigerator
Yes
Washer
Yes

Basement

Partial
Yes

Bath Description

Main Floor Full Bath
Yes

Construction Materials

Frame
Yes

Construction Status

Previously Owned
Yes

Dining Room Description

Separate/Formal Dining Room
Yes

Electric

Circuit Breakers
Yes

Exterior

Vinyl
Yes

Family Room Characteristics

Main Level
Yes

Fencing

Composite
Yes
Full
Yes

Foundation

Concrete Block
Yes
Stone
Yes

Fuel

Natural Gas
Yes

Heating

Forced Air
Yes

Insurance Fee

Insurance Fee
0

Laundry

Main Level
Yes

Lot Description

Corner Lot
Yes

Patio, Porch and Deck Features

Patio
Yes
Porch
Yes

Rental License Type

Standard
Yes

Road Frontage

City Street
Yes

Road Responsibility

Public Maintained Road
Yes

Roof

Asphalt Shingles
Yes

Sellers Terms

Cash
Yes
Conventional
Yes

Sewer

City Sewer/Connected
Yes

Stories

One and One Half
Yes

Water

City Water/Connected
Yes

Room Information

Bathroom Dimensions: 13.2x8.6 Level: Main Dining Room Dimensions: 13.3x12.6 Level: Main First (1st) Bedroom Dimensions: 11.6x8 Level: Upper Foyer Dimensions: 6x6.11 Level: Main Kitchen Dimensions: 13.6x11.5 Level: Main Living Room Dimensions: 11.4x18.8 Level: Main Porch Dimensions: 17.3x6.9 Level: Main Second (2nd) Bedroom Dimensions: 25x10.4 Level: Upper
Listing Office: True Real Estate
IDX
Last Updated: April - 20 - 2026
The data relating to real estate for sale on this web site comes in part from the Broker Reciprocity SM Program of the Regional Multiple Listing Service of Minnesota, Inc. The information provided is deemed reliable but not guaranteed. Properties subject to prior sale, change or withdrawal. ©2024 Regional Multiple Listing Service of Minnesota, Inc All rights reserved.