Property Type:
Residential
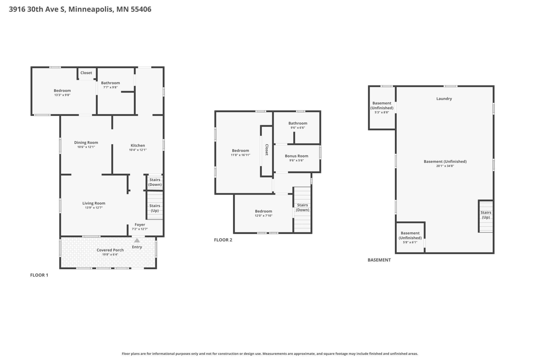
Bedrooms:
3
Baths:
2
Square Footage:
2,556
Lot Size (sq. ft.):
5,227
Status:
Coming Soon
Current Price:
$400,000
List Date:
4/20/2026
Last Modified:
4/21/2026
Overview
Description
Rare opportunity to own a charming, move-in ready home full of classic character in South Minneapolis. The welcoming front porch is filled with natural light and sets the tone for the warmth you feel throughout the home. Formal living and dining rooms offer generous space, highlighted by large newer windows.
The updated kitchen features granite countertops, newer cabinetry, stainless steel appliances, and a convenient mudroom nearby. A main floor bedroom and updated full bath offer the ease of main level living. Upstairs, you’ll find two additional bedrooms, a flexible bonus room with a barn door, and a second full bath with excellent storage.
The open unfinished basement with tall ceilings provides outstanding storage and great potential for future finished space and added equity. Outside, enjoy a fenced backyard with a picturesque pergola and beautifully landscaped yard with seasonal color. A two-car garage and ample off-street parking add to the convenience.
Major improvements include newer roof, siding, and windows, plus refinished hardwood floors upstairs in 2023. Full list of updates available in supplements.
Excellent South Minneapolis location with strong walkability to neighborhood restaurants, coffee shops, and parks, plus easy access to Lake Nokomis, Hiawatha Park, trails, and beaches. Classic charm, meaningful updates, and an unbeatable location come together here. Welcome home!
Last Updated: April - 21 - 2026
The data relating to real estate for sale on this web site comes in part from the Broker
Reciprocity SM Program of the Regional Multiple Listing Service of Minnesota, Inc. The information provided is deemed reliable but not guaranteed. Properties subject to prior sale, change or withdrawal.
©2024 Regional Multiple Listing Service of Minnesota, Inc All rights reserved.