358 Briar Lane, Taylors Falls, MN 55084

New Listing
$489,900
Property Type: Residential Bedrooms: 4 Baths: 3 Square Footage: 3,320 Lot Size (sq. ft.): 24,394 Status: Active
Current Price: $489,900 List Date: 4/11/2026 Last Modified: 4/11/2026

Overview

Description

Turn-key, one-owner rambler with breathtaking views of the St. Croix River, located in the historic community of Taylors Falls! This hard-to-find home features a massive 40x25 ft heated garage-perfect for all your toys-leading into a convenient mudroom. Stunning kitchen offers custom cabinetry, granite countertops, and abundant storage, making it both beautiful and functional. The dining and living rooms showcase some of the best views in Taylors Falls. The living room boasts a box ceiling, cozy gas fireplace-perfect for relaxing while enjoying the scenic surroundings. The main level includes three bedrooms and two bathrooms. The spacious owner’s suite features in-floor heating, a large closet, and panoramic river views. Additional highlights incl. Andersen 400 Series windows, a 12x15 cedar deck, and a lower patio already wired for a hot tub-ideal for entertaining or unwinding. TONS of storage and future furnishable sq ft in the lower level! Recent updates provide peace of mind, including: Furnace (2025), Water Heater (2025), Water Softener (2025), Range (2025), Refrigerator (2025), Washer (2023), and AC (2020). Outdoor enthusiasts will love the location-Taylors Falls is a hiker’s dream, surrounded by dramatic bluffs and cliffs. Enjoy great fishing just minutes away, plus easy access to Interstate Park’s boat launch/campsites. Year-round recreation awaits with nearby skiing at Wild Mountain and Trollhaugen, snow tubing at Wild Chutes, and kayaking or canoeing just minutes from your door.

Listing Details MLS# 7053434

General Property Information

Common Wall
No
Lot Measurement
Acres
Manufactured Home?
No
Multiple PIDs?
No
New Development
No
Number of Fireplaces
Yes
Waterfront Present
No
Year Built
2010
Yearly/Seasonal
Yearly
Zoning
Residential-Single Family
Bath Full
Yes
Bath Three Quarters
2
Main Floor Total SqFt
1670
Above Grd Total SqFt
1670
Below Grd Total SqFt
1650
Total SqFt
3320
Total Finished Sqft
2470.00
FireplaceYN
Yes
Style
(SF) Single Family
Foundation Size
1650
Garage Stalls
3
Lot Dimensions
104 x 212 x 145 x 188
Acres
0.56
Assessment Pending
No
Bath Half
0
Bath Quarter
0
Association Fee
0

Property Features

Accessible: None Air Conditioning: Central Air Amenities Unit: Ceiling Fan(s); Kitchen Window; Main Floor Primary Bedroom; Natural Woodwork; Paneled Doors; Patio; Primary Bedroom Walk-In Closet; Walk-In Closet; Washer/Dryer Hookup Appliances: Air-To-Air Exchanger; Dishwasher; Dryer; Microwave; Range; Refrigerator; Washer Basement: Drain Tiled; Full; Partially Finished; Storage Space Bath Description: Main Floor Full Bath; 3/4 Primary; Private Primary; 3/4 Basement Construction Status: Previously Owned Dining Room Description: Kitchen/Dining Room Electric: 200+ Amp Service Exterior: Vinyl Family Room Characteristics: Family Room; Lower Level Fencing: None Fireplace Characteristics: Gas Burning Foundation: 8 ft+ Pour Fuel: Natural Gas Heating: Forced Air Laundry: Laundry Room; Main Level; Sink Lock Box Type: Combo Parking Characteristics: Heated Garage Road Frontage: Paved Streets Road Responsibility: Public Maintained Road Roof: Age Over 8 Years; Architectural Shingle Sellers Terms: Cash; Conventional; FHA; VA Sewer: Private Sewer Special Search: 3 BR on One Level; Main Floor Laundry Stories: One Water: City Water/Connected Waterfront View: Panoramic; River

Contract Information

Contingency
None
Original List Price
489900
ListPrice
489900
Owner is an Agent?
No
Auction?
No

Location Tax and Other Information

House Number
358
Street Name
Briar
Street Suffix
Lane
Postal City
Taylors Falls
County
Chisago
State
MN
Zip Code
55084
Complex/Dev/Subdivision
Rolling Ridge 2nd Add

Assessments

Assessment Balance
43
Tax With Assessments
4082

Building Information

Finished SqFt Above Ground
1670
Finished SqFt Below Ground
800

More Information

Lease Details

Land Leased
Not Applicable

Miscellaneous Information

Homestead
Yes

Ownership

Fractional Ownership
No

Parking Characteristics

Garage Dimensions
40x25
Garage Door Height
7
Garage Door Width
16
Garage Square Feet
1020
Heated Garage
Yes

Public Survey Info

Range#
19
Section#
24
Township#
34

Office/Member Info

Association
MAAR

Location, Tax and Other Information

AssocFeeYN
No
Legal Description
SECTION 24 TOWNSHIP 034 RANGE 019 SUBDIVISIONNAME ROLLING RIDGE 2ND ADDITION LOT 004 BLOCK 001 SUBDIVISIONCD 20041
Listing City
Taylors Falls
Map Page
14
Municipality
Taylors Falls
School District
Chisago Lakes
School District Phone
651-213-2096
Zip Plus 4
1243
Property ID Number
200059604
Tax Year
2026
Tax Amount
4039
In Foreclosure?
No
Potential Short Sale?
No
Lender Owned?
No

Directions & Remarks

Public Remarks
Turn-key, one-owner rambler with breathtaking views of the St. Croix River, located in the historic community of Taylors Falls! This hard-to-find home features a massive 40x25 ft heated garage-perfect for all your toys-leading into a convenient mudroom. Stunning kitchen offers custom cabinetry, granite countertops, and abundant storage, making it both beautiful and functional. The dining and living rooms showcase some of the best views in Taylors Falls. The living room boasts a box ceiling, cozy gas fireplace-perfect for relaxing while enjoying the scenic surroundings. The main level includes three bedrooms and two bathrooms. The spacious owner’s suite features in-floor heating, a large closet, and panoramic river views. Additional highlights incl. Andersen 400 Series windows, a 12x15 cedar deck, and a lower patio already wired for a hot tub-ideal for entertaining or unwinding. TONS of storage and future furnishable sq ft in the lower level! Recent updates provide peace of mind, including: Furnace (2025), Water Heater (2025), Water Softener (2025), Range (2025), Refrigerator (2025), Washer (2023), and AC (2020). Outdoor enthusiasts will love the location-Taylors Falls is a hiker’s dream, surrounded by dramatic bluffs and cliffs. Enjoy great fishing just minutes away, plus easy access to Interstate Park’s boat launch/campsites. Year-round recreation awaits with nearby skiing at Wild Mountain and Trollhaugen, snow tubing at Wild Chutes, and kayaking or canoeing just minutes from your door.
Directions
First St, N on Chestnut St to Mulberry St, East on Briar Ln to home.

Accessible

None
Yes

Air Conditioning

Central Air
Yes

Amenities Unit

Ceiling Fan(s)
Yes
Kitchen Window
Yes
Main Floor Primary Bedroom
Yes
Natural Woodwork
Yes
Paneled Doors
Yes
Patio
Yes
Primary Bedroom Walk-In Closet
Yes
Walk-In Closet
Yes
Washer/Dryer Hookup
Yes

Appliances

Air-To-Air Exchanger
Yes
Dishwasher
Yes
Dryer
Yes
Microwave
Yes
Range
Yes
Refrigerator
Yes
Washer
Yes

Basement

Drain Tiled
Yes
Full
Yes
Partially Finished
Yes
Storage Space
Yes

Bath Description

Main Floor Full Bath
Yes
3/4 Primary
Yes
Private Primary
Yes
3/4 Basement
Yes

Construction Status

Previously Owned
Yes

Dining Room Description

Kitchen/Dining Room
Yes

Electric

200+ Amp Service
Yes

Exterior

Vinyl
Yes

Family Room Characteristics

Family Room
Yes
Lower Level
Yes

Fencing

None
Yes

Fireplace Characteristics

Gas Burning
Yes

Foundation

8 ft+ Pour
Yes

Fuel

Natural Gas
Yes

Heating

Forced Air
Yes

Insurance Fee

Insurance Fee
0

Laundry

Laundry Room
Yes
Main Level
Yes
Sink
Yes

Lock Box Type

Combo
Yes

Patio, Porch and Deck Features

Deck
Yes
Patio
Yes

Road Frontage

Paved Streets
Yes

Road Responsibility

Public Maintained Road
Yes

Roof

Age Over 8 Years
Yes
Architectural Shingle
Yes

Sellers Terms

Cash
Yes
Conventional
Yes
FHA
Yes
VA
Yes

Sewer

Private Sewer
Yes

Special Search

3 BR on One Level
Yes
Main Floor Laundry
Yes

Stories

One
Yes

Water

City Water/Connected
Yes

Waterfront View

Panoramic
Yes
River
Yes

Room Information

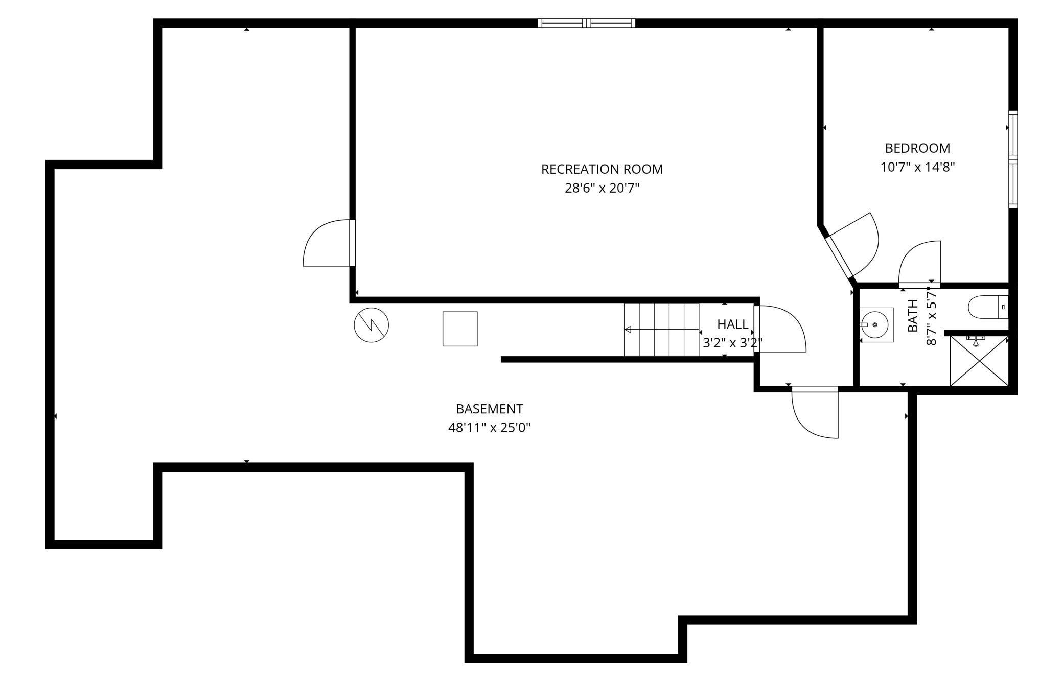
Dining Room Dimensions: 14 x 12 Level: Main Family Room Dimensions: 27 x 14 Level: Lower First (1st) Bedroom Dimensions: 15 x 11 Level: Main Fourth (4th) Bedroom Dimensions: 10.5 x 14.5 Level: Lower Kitchen Dimensions: 14 x14 Level: Main Laundry Dimensions: 8 x 5.5 Level: Main Living Room Dimensions: 15 x 15 Level: Main Second (2nd) Bedroom Dimensions: 12.5 x 11 Level: Main Third (3rd) Bedroom Dimensions: 12 x 11 Level: Main
Listing Office: RE/MAX Results
IDX
Last Updated: April - 11 - 2026
The data relating to real estate for sale on this web site comes in part from the Broker Reciprocity SM Program of the Regional Multiple Listing Service of Minnesota, Inc. The information provided is deemed reliable but not guaranteed. Properties subject to prior sale, change or withdrawal. ©2024 Regional Multiple Listing Service of Minnesota, Inc All rights reserved.