2515 Jandell Avenue NE, Saint Michael, MN 55376

$449,830
Property Type: Residential Bedrooms: 5 Baths: 3 Square Footage: 2,505 Lot Size (sq. ft.): 8,712 Status: Active
Current Price: $449,830 List Date: 3/27/2026 Last Modified: 4/08/2026

Overview

Description

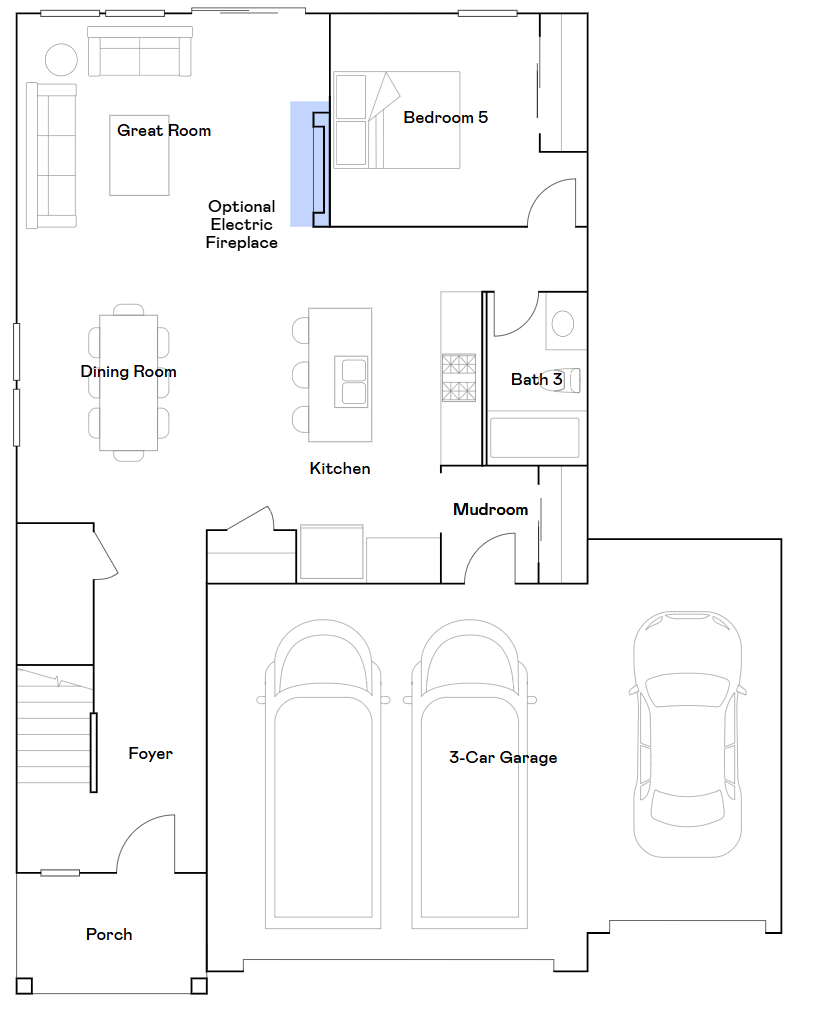
This home is under construction and will be completed in May! This two-story, 2,505-square-foot home offers standout living features for today’s buyers. Step inside to an inviting open layout where the spacious Great Room flows seamlessly into the dining area and modern kitchen, perfect for entertaining or quiet evenings in. An electric fireplace adds cozy ambiance, while a private office and convenient mudroom deliver everyday functionality. Upstairs, a central loft provides extra living space, joined by four bedrooms including a generous owner’s suite with walk-in closet and luxurious bath. With five bedrooms in total and a three-car garage for all your storage needs, this plan brings together comfort, versatility and style. Opportunities like this go quickly—schedule your visit before it’s gone!

Open Houses

Listing Details MLS# 7044252

General Property Information

Assoc Mgmt Co. Phone #
952-224-4777
Association Fee Frequency
Quarterly
Association Mgmt Co. Name
Sharper Management
Common Wall
No
Lot Measurement
Acres
Manufactured Home?
No
Multiple PIDs?
No
New Development
No
Number of Fireplaces
Yes
Projected Completion Date
2026-05-14
Waterfront Present
No
Year Built
2026
Yearly/Seasonal
Yearly
Zoning
Residential-Single Family
Bath Full
2
Bath Three Quarters
Yes
Main Floor Total SqFt
1055
Above Grd Total SqFt
2505
Total SqFt
2505
Total Finished Sqft
2505.00
FireplaceYN
Yes
Style
(SF) Single Family
Foundation Size
1055
Association Fee
116
Garage Stalls
3
Lot Dimensions
TBD
Acres
0.2
Assessment Pending
Unknown
Bath Half
0
Bath Quarter
0
Below Grd Total SqFt
0

Property Features

Accessible: None Air Conditioning: Central Air Amenities Unit: In-Ground Sprinkler; Kitchen Center Island; Paneled Doors; Primary Bedroom Walk-In Closet; Walk-In Closet; Washer/Dryer Hookup Appliances: Air-To-Air Exchanger; Dishwasher; Disposal; Dryer; Microwave; Range; Refrigerator; Washer; Other Association Fee Includes: Professional Mgmt Basement: None Bath Description: Main Floor Full Bath; Upper Level Full Bath; 3/4 Primary Builder Information: Builders Association of the Twin Cities Construction Materials: Concrete; Frame Construction Status: Under Construc/Spec Homes Dining Room Description: Informal Dining Room; Kitchen/Dining Room; Living/Dining Room Electric: 200+ Amp Service Exterior: Shakes; Vinyl Family Room Characteristics: 2 or More; Family Room; Loft; Main Level Fireplace Characteristics: Electric; Living Room Foundation: Slab Fuel: Natural Gas Heating: Forced Air Laundry: Gas Dryer Hookup; Laundry Room; Upper Level; Washer Hookup Lot Description: Sod Included in Price; Underground Utilities Parking Characteristics: Garage Door Opener Road Frontage: City Street; Curbs; Paved Streets Road Responsibility: Public Maintained Road Roof: Age 8 Years or Less; Asphalt Shingles Sewer: City Sewer/Connected Special Search: 2nd Floor Laundry; 3 BR on One Level; 4 BR on One Level; Main Floor Bedroom; Primary Bdr Suite Stories: Two Water: City Water/Connected

Contract Information

Contingency
None
Original List Price
484830
ListPrice
449830
Owner is an Agent?
No
Auction?
No

Location Tax and Other Information

House Number
2515
Street Name
Jandell
Street Suffix
Avenue
Street Direction Suffix
NE
Postal City
Saint Michael
County
Wright
State
MN
Zip Code
55376
Complex/Dev/Subdivision
Gonz Lake

Builder Information

Builder ID
LENNAR
Builder License Number
1413
Builder Name
LENNAR
Builders Association of the Twin Cities
Yes

Building Information

Availability Dt for Closing
2026-05-14
Finished SqFt Above Ground
2505

More Information

Insurance Fee

Insurance Fee Frequency
N/A
Insurance Fee
0

Lease Details

Land Leased
Not Applicable

Miscellaneous Information

Community Name
Gonz Lake
DP Resource
Yes
Homestead
No

Model Information

Hours Model Open
11-6
Model Location
2324 Jandell Ave NE, St Michael, MN 55376
Model Phone
952-373-0485

Ownership

Fractional Ownership
No

Parking Characteristics

Garage Square Feet
643
Garage Door Opener
Yes

Office/Member Info

Association
MAAR

Location, Tax and Other Information

AssocFeeYN
Yes
Legal Description
TBD
Listing City
Saint Michael
Map Page
60
Municipality
Saint Michael
School District
St. Michael-Albertville
School District Phone
763-497-3180
Property ID Number
TBD
Tax Year
2026
Tax Amount
0
In Foreclosure?
No
Potential Short Sale?
No
Lender Owned?
No

Directions & Remarks

Public Remarks
This home is under construction and will be completed in May! This two-story, 2,505-square-foot home offers standout living features for today’s buyers. Step inside to an inviting open layout where the spacious Great Room flows seamlessly into the dining area and modern kitchen, perfect for entertaining or quiet evenings in. An electric fireplace adds cozy ambiance, while a private office and convenient mudroom deliver everyday functionality. Upstairs, a central loft provides extra living space, joined by four bedrooms including a generous owner’s suite with walk-in closet and luxurious bath. With five bedrooms in total and a three-car garage for all your storage needs, this plan brings together comfort, versatility and style. Opportunities like this go quickly—schedule your visit before it’s gone!
Directions
Open During Road Construction. Take I-94 W to the St. Michael exit, go west on 42nd St NE to Cty Rd 35, south on Jamison Ave NE to Jandell Ave NE.

Accessible

None
Yes

Air Conditioning

Central Air
Yes

Amenities Unit

In-Ground Sprinkler
Yes
Kitchen Center Island
Yes
Paneled Doors
Yes
Primary Bedroom Walk-In Closet
Yes
Walk-In Closet
Yes
Washer/Dryer Hookup
Yes

Appliances

Air-To-Air Exchanger
Yes
Dishwasher
Yes
Disposal
Yes
Dryer
Yes
Microwave
Yes
Range
Yes
Refrigerator
Yes
Washer
Yes
Other
Yes

Assessments

Assessment Balance
0
Tax With Assessments
0

Association Fee Includes

Professional Mgmt
Yes

Basement

None
Yes

Bath Description

Main Floor Full Bath
Yes
Upper Level Full Bath
Yes
3/4 Primary
Yes

Construction Materials

Concrete
Yes
Frame
Yes

Construction Status

Under Construc/Spec Homes
Yes

Dining Room Description

Informal Dining Room
Yes
Kitchen/Dining Room
Yes
Living/Dining Room
Yes

Electric

200+ Amp Service
Yes

Exterior

Shakes
Yes
Vinyl
Yes

Family Room Characteristics

2 or More
Yes
Family Room
Yes
Loft
Yes
Main Level
Yes

Fireplace Characteristics

Electric
Yes
Living Room
Yes

Foundation

Slab
Yes

Fuel

Natural Gas
Yes

Heating

Forced Air
Yes

Laundry

Gas Dryer Hookup
Yes
Laundry Room
Yes
Upper Level
Yes
Washer Hookup
Yes

Lot Description

Sod Included in Price
Yes
Underground Utilities
Yes

Road Frontage

City Street
Yes
Curbs
Yes
Paved Streets
Yes

Road Responsibility

Public Maintained Road
Yes

Roof

Age 8 Years or Less
Yes
Asphalt Shingles
Yes

Sewer

City Sewer/Connected
Yes

Special Search

2nd Floor Laundry
Yes
3 BR on One Level
Yes
4 BR on One Level
Yes
Main Floor Bedroom
Yes
Primary Bdr Suite
Yes

Stories

Two
Yes

Water

City Water/Connected
Yes

Room Information

Dining Room Dimensions: 14x15 Level: Main Fifth (5th) Bedroom Dimensions: 11x11 Level: Main First (1st) Bedroom Dimensions: 14x16 Level: Upper Fourth (4th) Bedroom Dimensions: 14x11 Level: Upper Kitchen Dimensions: 10x18 Level: Main Living Room Dimensions: 16x11 Level: Main Loft Dimensions: 15x15 Level: Upper Second (2nd) Bedroom Dimensions: 11x11 Level: Upper Third (3rd) Bedroom Dimensions: 11x13 Level: Upper
Listing Office: Lennar Sales Corp
IDX
Last Updated: April - 08 - 2026
The data relating to real estate for sale on this web site comes in part from the Broker Reciprocity SM Program of the Regional Multiple Listing Service of Minnesota, Inc. The information provided is deemed reliable but not guaranteed. Properties subject to prior sale, change or withdrawal. ©2024 Regional Multiple Listing Service of Minnesota, Inc All rights reserved.