15418 Nature Road, Royalton, MN 56373

New Listing
$339,000
Property Type: Residential Bedrooms: 3 Baths: 2 Square Footage: 3,021 Lot Size (sq. ft.): 295,337 Status: Coming Soon
Current Price: $339,000 List Date: 4/06/2026 Last Modified: 4/06/2026

Overview

Description

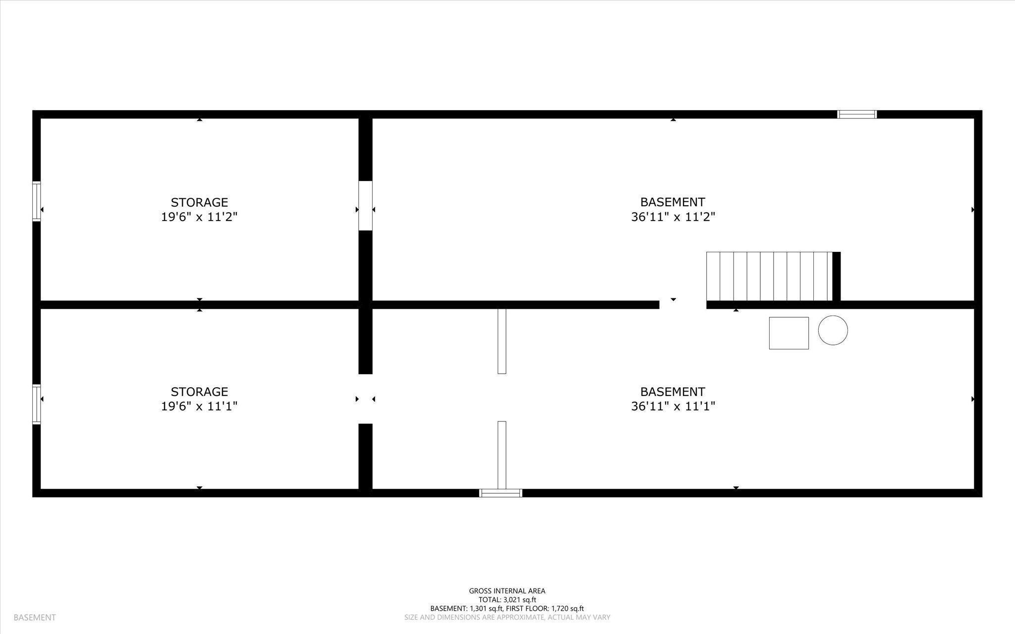
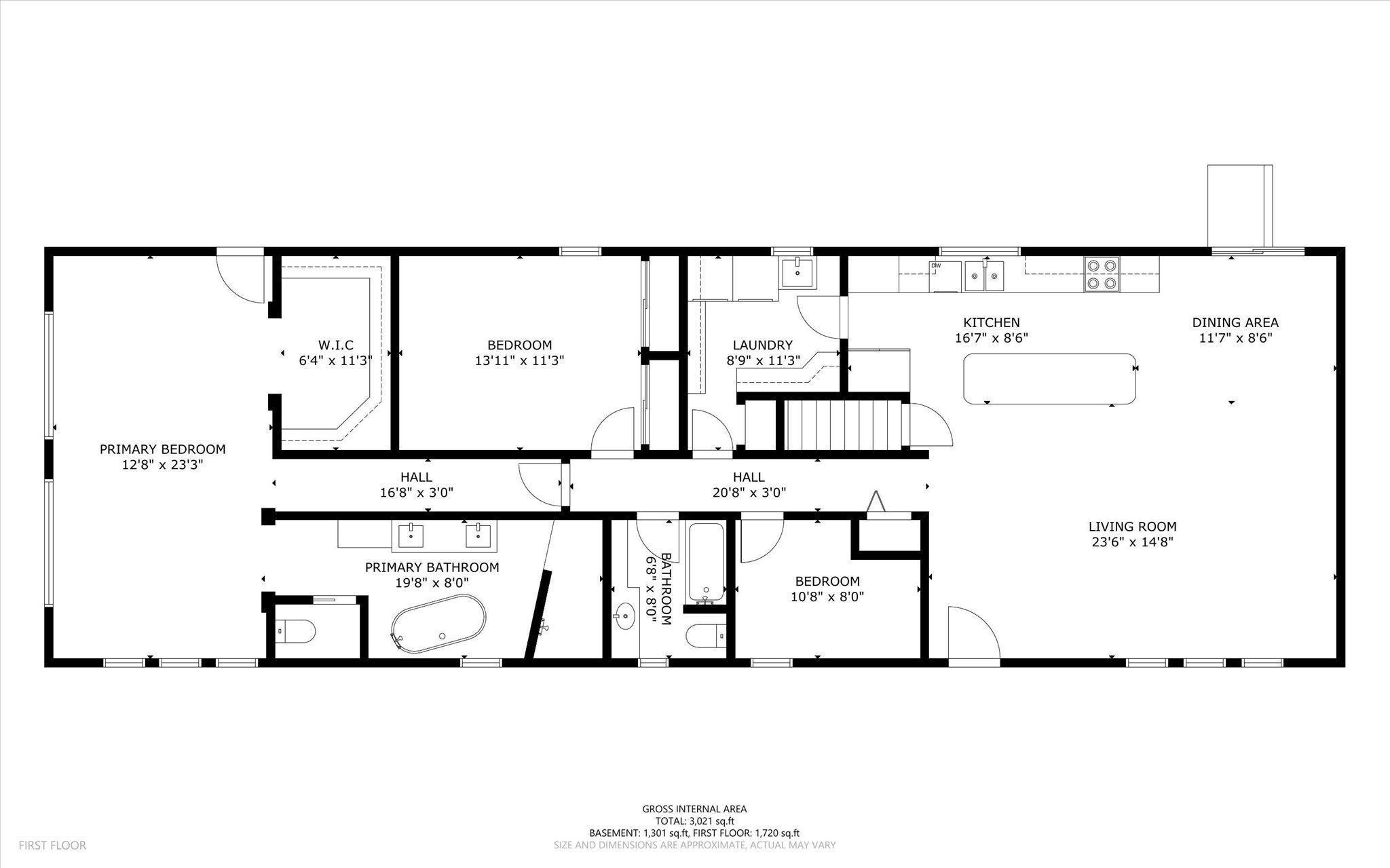
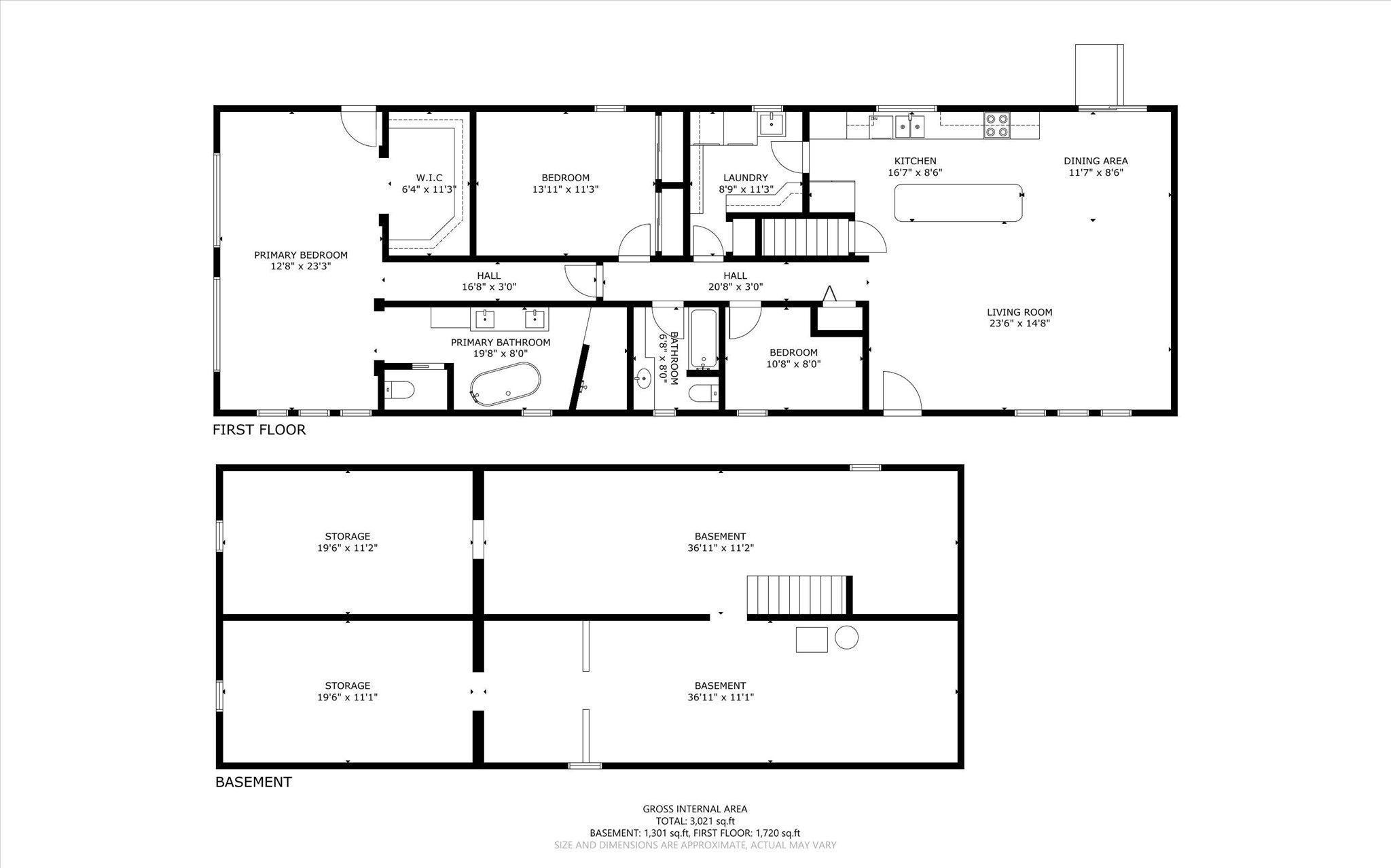
Welcome to an inviting, open floorplan home that blends comfort, accessibility, and room to grow. Situated on scenic acreage, this property offers privacy and space while featuring solar panels for energy efficiency. An outdoor ramp provides easy entry, and the home is equipped with handicap-accessible features, including all living facilities on one level and a convenient roll-in shower. Inside, you’ll find a spacious primary bedroom complete with a walk-in closet, along with an open and functional layout designed for everyday ease. The 58’ x 25’ 3-car garage offers ample storage and workspace, perfect for hobbies or additional equipment. The unfinished basement presents an excellent opportunity to expand and customize to your needs. Be at ease with the comfort of knowing you have a newer septic system within the last 5 years. Whether you're looking for extra space, or a peaceful rural setting with modern upgrades, this property is ready to welcome you home.

Listing Details MLS# 6812070

General Property Information

Common Wall
No
Lot Measurement
Acres
Manufactured Home?
No
Multiple PIDs?
No
New Development
No
Waterfront Present
No
Year Built
1972
Yearly/Seasonal
Yearly
Zoning
Residential-Single Family
Bath Full
2
Main Floor Total SqFt
1720
Above Grd Total SqFt
1720
Below Grd Total SqFt
1301
Total SqFt
3021
Total Finished Sqft
1720.00
FireplaceYN
No
Style
(SF) Single Family
Foundation Size
1720
Garage Stalls
3
Lot Dimensions
330x944x330x942
Acres
6.78
Assessment Pending
Unknown
Number of Fireplaces
0
Bath Three Quarters
0
Bath Half
0
Bath Quarter
0
Association Fee
0

Property Features

Accessible: Grab Bars In Bathroom; Partially Wheelchair; Roll-In Shower; Soaking Tub; Wheelchair Ramp Air Conditioning: Central Air Appliances: Cooktop; Dishwasher; Dryer; Energy Star Appliances; Range; Refrigerator; Washer Basement: Unfinished Bath Description: Main Floor Full Bath; Bathroom Ensuite Construction Materials: Block Construction Status: Previously Owned Dining Room Description: Kitchen/Dining Room Exterior: Vinyl Family Room Characteristics: Family Room; Main Level Fencing: Chain Link Foundation: Concrete Block Fuel: Natural Gas Heating: Forced Air Laundry: Laundry Closet Lot Description: Tree Coverage - Light Outbuildings: Additional Garage; Workshop Road Frontage: Private Road Roof: Age Over 8 Years; Architectural Shingle; Asphalt Shingles; Composition Sewer: Private Sewer; Septic System Compliant - Yes Special Search: 3 BR on One Level; All Living Facilities on One Level; Divided Bdr Flr Plan; Main Floor Laundry Stories: One Water: Private; Well

Contract Information

Contingency
None
Original List Price
339000
ListPrice
339000
Owner is an Agent?
No
Auction?
No

Location Tax and Other Information

House Number
15418
Street Name
Nature
Street Suffix
Road
Postal City
Royalton
County
Morrison
State
MN
Zip Code
56373

Building Information

Finished SqFt Above Ground
1720

Lease Details

Land Leased
Not Applicable

More Information

Miscellaneous Information

Homestead
Yes

Ownership

Fractional Ownership
No

Parking Characteristics

Garage Dimensions
58x25
Garage Square Feet
1424

Public Survey Info

Range#
32
Section#
33
Township#
39

Office/Member Info

Association
SPAAR

Location, Tax and Other Information

AssocFeeYN
No
Legal Description
SECT- 33 TWP- 039 RANGE- 032 S 20 RDS OF SE1/4 OF NW1/4 LESS ELY 425 FT
Listing City
Royalton
Map Page
999
Municipality
Royalton
School District
Royalton
School District Phone
320-584-5531
Zip Plus 4
4104
Property ID Number
030493001
Tax Year
2025
Tax Amount
0
In Foreclosure?
No
Potential Short Sale?
No
Lender Owned?
No

Directions & Remarks

Public Remarks
Welcome to an inviting, open floorplan home that blends comfort, accessibility, and room to grow. Situated on scenic acreage, this property offers privacy and space while featuring solar panels for energy efficiency. An outdoor ramp provides easy entry, and the home is equipped with handicap-accessible features, including all living facilities on one level and a convenient roll-in shower. Inside, you’ll find a spacious primary bedroom complete with a walk-in closet, along with an open and functional layout designed for everyday ease. The 58’ x 25’ 3-car garage offers ample storage and workspace, perfect for hobbies or additional equipment. The unfinished basement presents an excellent opportunity to expand and customize to your needs. Be at ease with the comfort of knowing you have a newer septic system within the last 5 years. Whether you're looking for extra space, or a peaceful rural setting with modern upgrades, this property is ready to welcome you home.
Directions
94 West to US-10 West, right to Nature Road NE

Accessible

Grab Bars In Bathroom
Yes
Partially Wheelchair
Yes
Roll-In Shower
Yes
Soaking Tub
Yes
Wheelchair Ramp
Yes

Air Conditioning

Central Air
Yes

Appliances

Cooktop
Yes
Dishwasher
Yes
Dryer
Yes
Energy Star Appliances
Yes
Range
Yes
Refrigerator
Yes
Washer
Yes

Assessments

Assessment Balance
0
Assessment Installment
0
Tax With Assessments
0

Basement

Unfinished
Yes

Bath Description

Main Floor Full Bath
Yes
Bathroom Ensuite
Yes

Construction Materials

Block
Yes

Construction Status

Previously Owned
Yes

Dining Room Description

Kitchen/Dining Room
Yes

Exterior

Vinyl
Yes

Family Room Characteristics

Family Room
Yes
Main Level
Yes

Fencing

Chain Link
Yes

Foundation

Concrete Block
Yes

Fuel

Natural Gas
Yes

Heating

Forced Air
Yes

Insurance Fee

Insurance Fee
0

Laundry

Laundry Closet
Yes

Lot Description

Tree Coverage - Light
Yes

Outbuildings

Additional Garage
Yes
Workshop
Yes

Road Frontage

Private Road
Yes

Roof

Age Over 8 Years
Yes
Architectural Shingle
Yes
Asphalt Shingles
Yes
Composition
Yes

Sewer

Private Sewer
Yes
Septic System Compliant - Yes
Yes

Special Search

3 BR on One Level
Yes
All Living Facilities on One Level
Yes
Divided Bdr Flr Plan
Yes
Main Floor Laundry
Yes

Stories

One
Yes

Water

Private
Yes
Well
Yes

Room Information

Bathroom Dimensions: 19.8 x 8 Level: Main Bathroom Dimensions: 6.8 x 8 Level: Main Dining Room Dimensions: 11.7 x 8.6 Level: Main First (1st) Bedroom Dimensions: 10.8 x 8 Level: Main Kitchen Dimensions: 16.7 x 8.6 Level: Main Laundry Dimensions: 8.9 x 11.3 Level: Main Living Room Dimensions: 23.6 x 14.8 Level: Main Second (2nd) Bedroom Dimensions: 13.11 x 11.3 Level: Main Third (3rd) Bedroom Dimensions: 12.8 x 23.3 Level: Main
Listing Office: Keller Williams Integrity NW
IDX
Last Updated: April - 06 - 2026
The data relating to real estate for sale on this web site comes in part from the Broker Reciprocity SM Program of the Regional Multiple Listing Service of Minnesota, Inc. The information provided is deemed reliable but not guaranteed. Properties subject to prior sale, change or withdrawal. ©2024 Regional Multiple Listing Service of Minnesota, Inc All rights reserved.