Property Type:
Residential
Bedrooms:
4
Baths:
3
Square Footage:
3,553
Lot Size (sq. ft.):
8,276
Status:
Active
Current Price:
$615,665
List Date:
4/21/2026
Last Modified:
4/21/2026
Overview
Description
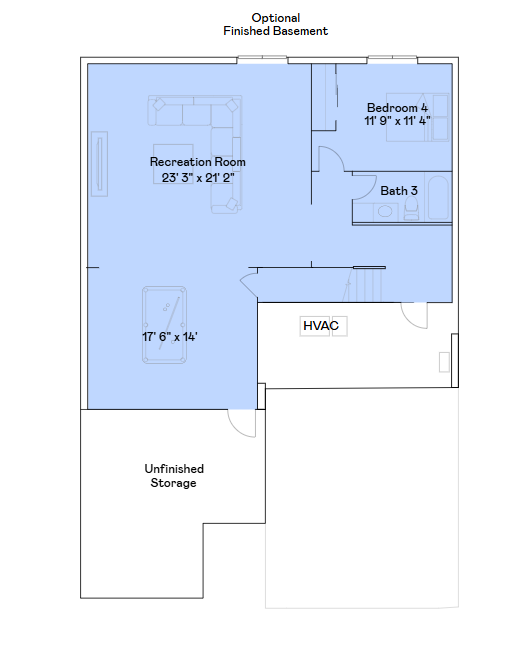
Introducing the Salem floorplan in the welcoming Fields of Winslow Cove, a thoughtfully designed one-story home that blends modern style with everyday ease. This home features 4 bedrooms, 3 baths, and a 3-car garage, providing space, convenience, and flexibility for modern living. The open-concept main level is the heart of the home, featuring a bright Great Room with an electric fireplace, a dining area with sliding glass doors that seamlessly bring the outdoors in, and a gourmet kitchen with stainless steel appliances and a roomy pantry. The owner's suite serves as a peaceful retreat with dual sinks and a walk-in closet, while the two secondary bedrooms at the front of the home are perfect for guests, offices, or creative spaces. An finished walkout lower level offers an additional bedroom, full bath, and recreation room. Enjoy the ease of HOA-provided lawn care and snow removal, and take advantage of nearby shopping, dining, and Prairie Knoll Park. With its smart layout, modern finishes, and low-maintenance lifestyle, the Salem floorplan is designed to fit your life today—and grow with you tomorrow.
Last Updated: April - 21 - 2026
The data relating to real estate for sale on this web site comes in part from the Broker
Reciprocity SM Program of the Regional Multiple Listing Service of Minnesota, Inc. The information provided is deemed reliable but not guaranteed. Properties subject to prior sale, change or withdrawal.
©2024 Regional Multiple Listing Service of Minnesota, Inc All rights reserved.