106 E Park Avenue, Buffalo Lake, MN 55332

New Listing
$69,900
Property Type: Residential Bedrooms: 3 Baths: 2 Square Footage: 1,648 Lot Size (sq. ft.): 27,443 Status: Active
Current Price: $69,900 List Date: 4/25/2026 Last Modified: 4/25/2026

Overview

Description

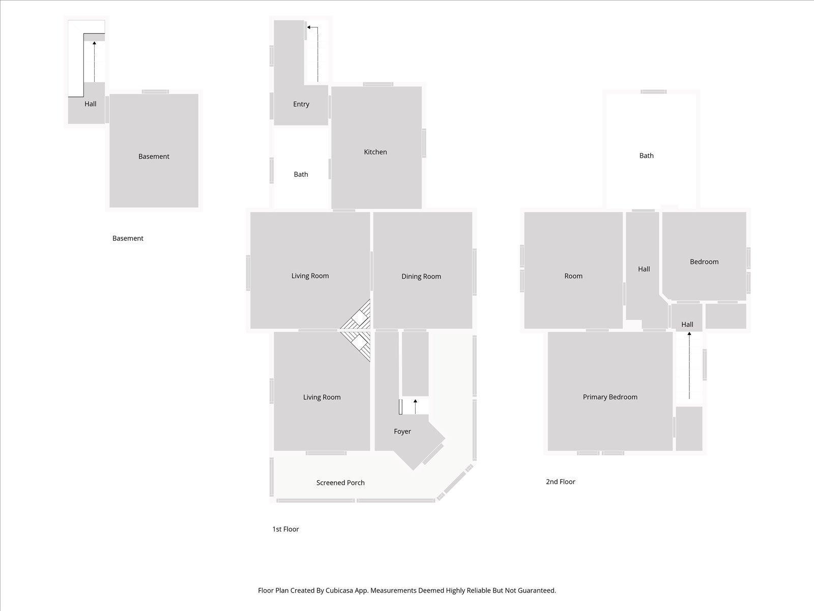
Step into timeless character and space with this 1910-built home offering 1,516 finished square feet, 3 bedrooms, and 2 baths. Situated on a large corner lot in the heart of Buffalo Lake, this property features generously sized rooms, two fireplaces, and a classic wraparound front porch—perfect for relaxing. Inside, you’ll find spacious living areas with original charm and a layout that offers flexibility for a variety of needs. The home presents a great opportunity for those looking to build equity and bring their own vision to life, with room to enhance and update over time. The oversized four-car detached garage is a standout feature, offering abundant space for vehicles, storage, or workshop use. The expansive corner lot provides added privacy and outdoor potential, whether for gardening, recreation, or future improvements. Conveniently located with easy access to highways, this home offers the best of small-town living while remaining accessible to surrounding areas. A unique opportunity for buyers looking for space, character, and the chance to make a home their own.

Listing Details MLS# 7061969

General Property Information

Common Wall
No
Lot Measurement
Acres
Manufactured Home?
No
Multiple PIDs?
No
New Development
No
Number of Fireplaces
2
Waterfront Present
No
Year Built
1905
Yearly/Seasonal
Yearly
Zoning
Residential-Single Family
Bath Three Quarters
Yes
Bath Half
Yes
Main Floor Total SqFt
809
Above Grd Total SqFt
1516
Below Grd Total SqFt
132
Total SqFt
1648
Total Finished Sqft
1516.00
FireplaceYN
Yes
Style
(SF) Single Family
Foundation Size
132
Garage Stalls
4
Lot Dimensions
142x150
Acres
0.63
Assessment Pending
Unknown
Bath Quarter
0
Association Fee
0

Property Features

Accessible: None Air Conditioning: None Amenities Unit: Porch Assumable Loan: Not Assumable Basement: Partial; Unfinished Construction Status: Previously Owned Dining Room Description: Separate/Formal Dining Room Exterior: Wood Fencing: None Fireplace Characteristics: Wood Burning Foundation: Stone Fuel: Natural Gas Heating: Baseboard Laundry: Laundry Room; Main Level Lock Box Type: Combo Lot Description: Corner Lot Road Frontage: City Street Road Responsibility: Public Maintained Road Roof: Age Over 8 Years Sellers Terms: Cash; Conventional; Conventional Rehab; FHA Rehab 203k Sewer: City Sewer/Connected Special Search: Main Floor Laundry Stories: Two Water: City Water/Connected

Contract Information

Contingency
None
Original List Price
69900
ListPrice
69900
Owner is an Agent?
No
Auction?
No

Location Tax and Other Information

House Number
106
Street Direction Prefix
E
Street Name
Park
Street Suffix
Avenue
Postal City
Buffalo Lake
County
Renville
State
MN
Zip Code
55332
Complex/Dev/Subdivision
Lammers Court

Assessments

Tax With Assessments
1654
Assessment Balance
0

Building Information

Finished SqFt Above Ground
1516

More Information

Lease Details

Land Leased
Not Applicable

Miscellaneous Information

DP Resource
Yes
Homestead
Yes

Ownership

Fractional Ownership
No

Parking Characteristics

Garage Square Feet
864

Office/Member Info

Association
GLAR

Location, Tax and Other Information

AssocFeeYN
No
Legal Description
W 142' OF N 150' OF LOT 6
Listing City
Buffalo Lake
Map Page
999
Municipality
Buffalo Lake
School District
Buffalo Lake-Hector-Stewart
School District Phone
320-848-2233
Zip Plus 4
1106
Property ID Number
290194000
Tax Year
2026
Tax Amount
1654
In Foreclosure?
No
Potential Short Sale?
No
Lender Owned?
Not disclosed

Directions & Remarks

Public Remarks
Step into timeless character and space with this 1910-built home offering 1,516 finished square feet, 3 bedrooms, and 2 baths. Situated on a large corner lot in the heart of Buffalo Lake, this property features generously sized rooms, two fireplaces, and a classic wraparound front porch—perfect for relaxing. Inside, you’ll find spacious living areas with original charm and a layout that offers flexibility for a variety of needs. The home presents a great opportunity for those looking to build equity and bring their own vision to life, with room to enhance and update over time. The oversized four-car detached garage is a standout feature, offering abundant space for vehicles, storage, or workshop use. The expansive corner lot provides added privacy and outdoor potential, whether for gardening, recreation, or future improvements. Conveniently located with easy access to highways, this home offers the best of small-town living while remaining accessible to surrounding areas. A unique opportunity for buyers looking for space, character, and the chance to make a home their own.
Directions
Main Street to Park Avenue

Accessible

None
Yes

Air Conditioning

None
Yes

Amenities Unit

Porch
Yes

Assumable Loan

Not Assumable
Yes

Basement

Partial
Yes
Unfinished
Yes

Construction Status

Previously Owned
Yes

Dining Room Description

Separate/Formal Dining Room
Yes

Exterior

Wood
Yes

Fencing

None
Yes

Fireplace Characteristics

Wood Burning
Yes

Foundation

Stone
Yes

Fuel

Natural Gas
Yes

Heating

Baseboard
Yes

Insurance Fee

Insurance Fee
0

Laundry

Laundry Room
Yes
Main Level
Yes

Lock Box Type

Combo
Yes

Lot Description

Corner Lot
Yes

Patio, Porch and Deck Features

Front Porch
Yes
Wrap Around
Yes

Road Frontage

City Street
Yes

Road Responsibility

Public Maintained Road
Yes

Roof

Age Over 8 Years
Yes

Sellers Terms

Cash
Yes
Conventional
Yes
Conventional Rehab
Yes
FHA Rehab 203k
Yes

Sewer

City Sewer/Connected
Yes

Special Search

Main Floor Laundry
Yes

Stories

Two
Yes

Water

City Water/Connected
Yes

Room Information

Den Dimensions: 11x13 Level: Main Dining Room Dimensions: 14x13 Level: Main First (1st) Bedroom Dimensions: 14x14 Level: Upper Kitchen Dimensions: 10x14 Level: Main Living Room Dimensions: 11x14 Level: Main Second (2nd) Bedroom Dimensions: 13x11 Level: Upper Third (3rd) Bedroom Dimensions: 10x10 Level: Upper
Listing Office: Gallery of Homes
IDX
Last Updated: April - 25 - 2026
The data relating to real estate for sale on this web site comes in part from the Broker Reciprocity SM Program of the Regional Multiple Listing Service of Minnesota, Inc. The information provided is deemed reliable but not guaranteed. Properties subject to prior sale, change or withdrawal. ©2024 Regional Multiple Listing Service of Minnesota, Inc All rights reserved.